
 原本方形窄小的客廳,經過江榮裕設計師的改造翻新,成為一個有玄關、開放式廚房、寬敞客餐廳的明亮公共場域。
 
 
 屋主碰上設計師: 
 故事要從新郎舅舅、舅媽的新家說起,江榮裕設計師替舅媽一家人完成的新居,不但讓三個小孩各自擁有自己特色、需求的房間,售後服務也讓舅媽一家人感到貼心,讓新人爸媽對親戚的新居設計師留下好印象,現在換自己孩子要為新婚購置新屋了,加上自己人的口碑推薦,便找來了居逸設計的江榮裕,而讓屋主一家人決定請江榮裕設計師的關鍵,是他的功力。
 
  
 屋主需求大聲說:
 屋主原本對於這間狹長老屋的動線格局感到困擾卻又無法想像,沒想到江榮裕設計師完全顛覆他們對這間老屋的制式想像,將原本的格局完全推翻,重新調整動線之後,居然能夠讓屋主的需求通通實現!男主人希望保留原來的兩房,一間做為客房與多功能室,除了主臥的衛浴還希望有一間客用衛浴,女主人則指定要一間更衣室與大浴缸!在20坪的房子,這簡直是不可能的任務!
  
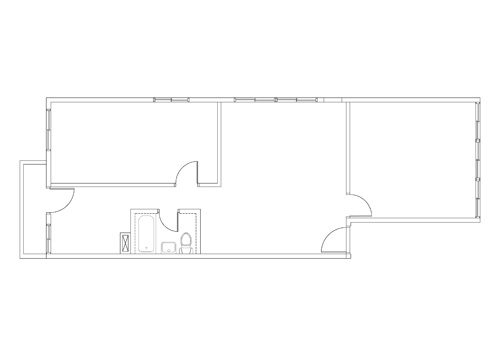
 原本的老房子,進門沒有玄關,客、餐廳沒有遮蔽性;而公共場域呈現正方形,且與廚房距離遠,使用動線不良又與浴室只隔一道牆!主臥是最靠近大門的一間,緊鄰的主要街道,就睡眠品質與隱私面來看,都不是理想的主臥位置;空間分佈不均,客廳太小而次臥則顯得過大且狹長。
 
 
 原始平面圖
 
 
 
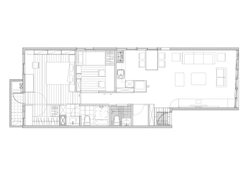
 設計平面圖
 
 
  
 看設計師變魔術:
 設 計師以他建築師的背景,衡量空間結構體與動線機能,大刀闊斧變動整體格局,將原本主臥的牆打掉,釋放出來的空間成為開放式的客、餐廳與廚房,而主臥則移至 房子的最裡端,吸收了次臥一半的坪數以及納入走道的後半段,替屋主另闢一處幽靜又夠大的私人空間,同時解決過於狹長的走道問題。
  
 使用「明廳暗房」的色系主題來規劃這對夫妻的新居,橡木染白的木皮、白膜玻璃以及整套白色鋼琴烤漆的廚具,讓原本採光條件好的公共場域更加明亮,而屬於休息區域的臥房則使用色澤較深的柚木營造靜謐放鬆的氛圍。
 
 
 1.
  


老屋原本的格局因為大門敞開室內便一覽無遺,雖然新屋的玄關因為坪數關係不夠大,然而設計師以整面鏡牆使玄關在視覺上放大一倍,並以刮泥墊搭配大理石和石英磚,方便屋主清理。
 
 
 2.
  


老屋最常見的缺陷,就是走道過於狹長,光線不易進到後方,設計師幾乎將走道兩邊的隔間打掉重做,其中把原本的次臥釋放成為開放式廚房,把走道尾端納入主臥,解決走道過長與窄小感,走道另一側則以整排的隱藏門減輕門片的擁擠。
  
 
 3.
  


一開始主臥位於門口與街道旁的位置,考量睡眠品質與隱私,設計師將公共場域做為進門的第一個接觸空間,讓寬敞的客餐廳成為入門第一印象。
 
 
 4.
  


廚房使用白膜玻璃遮蔽冰箱和電器櫃,並以一盞壁燈做裝飾,讓視覺呈現更完整。
 
 
 5.
  

 
 原本的衛浴採傳統的配置方式,江榮裕將主浴以玻璃作乾濕分離區隔,並乾區做一整列的收納設計。
  
 
 
 聽設計師說設計:
 擁有一個合理的空間機能,往往比建材風格的裝飾來得重要,因為空間架構對了,生活機能才會順暢,我一直強調:「家是生活的容器,要先理解自己的生活作息,才能讓這個家住起來舒適合意。」就像這個案子,我常跟我們的業主說:「搬新家是喜事,千萬不要為了新房子的裝修心煩意亂,往輕鬆那一面去想就好了;至於令人心浮氣躁的麻煩事,通通都交給我們就行了。」
 
  
 Home data
 座落地點:台北市富錦街
 建築形式:公寓
 房屋狀況:30年老屋
 居住成員:2人
 坪 數:20坪
 空間格局:客廳、餐廳、廚房、主臥、書房、儲藏室、客衛、主衛
 主要建材:霧面石英磚、深金峰大理石、立體壁紙、橡木染白木皮、白膜玻璃、柚木、橡木集層材 、烤漆
  
 
 居逸室內設計
 電話:02-2655-0570
 網站:www.g-e.tw
 部落格:tw.myblog.yahoo.com/roy-chiang
 信箱:roy@g-e.tw
 地址:台北市南港區三重路19-3號7樓之3(南港軟體園區D棟); 台中市南區仁義街67號6樓之2
 更多居逸室內設計案例