提醒你
本網站隱私權政策已於2018年7月20日更新,請至閱覽並同意新版隱私權政策,若您未勾選同意而繼續使用本網站,則視為您已同意新版隱私權政策。

不論是老屋、中古屋、新成屋還是預售屋,當屋主購入新居時,要如何讓這個陌生的空間,成為和居住者有關聯的「家」?行濶室內裝修設計—鄭大年總監認真傾聽屋主需求,從家庭成員、日常生活習慣、出入場合、興趣嗜好等等著手,作為裝修設計的靈感主要來源。以下介紹由設計師親自操刀的三個住宅案,有著不同的屋況、家庭成員與年齡,更有著不一樣的偏好與對空間想像,將這些過往的習慣與抽象的願景化為具體設計,打造出具備個人識別、符合預算與風格需求的住宅,讓空間成為家!
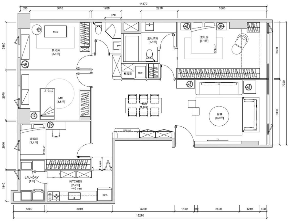
約60多歲的退休夫妻購入這間新古屋為毛胚狀態,空間中的四間衛浴與廚房則是建商已經設定好的格局。退休夫妻對於生活機能沒有特別需求,但十分喜歡收藏琉璃工藝的女屋主,希望這些收藏能夠融入新家裝潢設計;不追求常見的開放式設計,而是希望每個空間都有自己的風格與個性。

① 藝術玄關長廊,創造有景的住宅樞紐
擁有絕佳坪數優勢的新成屋在格局規劃上打造出玄關長廊,隱藏著通往客廳、餐廳與臥室的通道,跳脫一般住宅迂迴的動線,成為家中的交通樞紐。玄關長廊著重在視覺陳列設計,除了基本的收納櫃體外,以石材為佈景襯托屋主喜愛的琉璃工藝作品。地板磁磚有著典雅的勾邊引導動線;牆面鑲嵌的櫃體採用普魯士藍噴漆跳色與金屬線板,詮釋別緻的混搭風格。


② 精緻奢石與拓彩岩讓收納變隱形
客廳區以精緻奢石為主角,電視牆與電視平台選擇天然大理石打底,用於收納的電視櫃鋪貼拓彩岩,並以鍍鈦飾條收邊,展現石材之美。餐廳隔間選擇玻璃旋轉門設計與客廳做出場域劃分,旋轉門相較於常見的玻璃拉門更有儀式感,也不需要牆面厚度做隱藏。


③ 旋轉門找出開放與封閉找到最佳解法
餐廳主牆以木作打造類似畫框設計,量好尺寸後訂製琉璃畫作裝飾空間;玻璃餐燈呼應琉璃藝術,呈現與客廳截然不同的設計風格。雖然每個場域風格不同,但設計師透過色調延續讓眾多異材質相輔相成,像是備餐櫃的設計則是呼應玄關櫃設計;玄關、客廳與餐廚區的地板材質不同,但在色彩上相互呼應,呈現多元建材的和諧感。



④ 異材質同色調佈局,打造男女主人專屬寢居空間
兩間主臥皆為自帶衛浴的套房設計,男女屋主分別擁有獨立的寢居空間,在風格塑造也是依照個人喜好訂製。以木作打造衣櫃與電視櫃,滿足基礎需求並建立一個百搭的空間背景,女主人房設計圍繞著粉色調,像是壁紙、沙發與天花板玫瑰金飾條,以及花鳥圖騰的窗簾,皆刻畫女主人的風格喜好。沙發與床頭設計帶著新古典風格,一進門就感受到是專屬於女性的空間。男主人的房間則是訂製造型辦公桌,選擇孔雀綠的床頭板與主人椅,更有現代風格的設計全是男主人的個性。兩間臥室的地板雖然都是人字紋木地板,但挑選不同木種去拼貼,客房則是運用木質元素打造中性舒適是的寢居風格。



年約40多歲的夫妻檔與兩個小孩,在與設計師討論老屋裝修改造時,希望可以將自己從世界各地帶回的家具收藏變成空間設計的一部分,連同舊家的沙發也希望可以在新空間沿用。行濶室內裝修設計鄭大年總監簡化美式元素,並以灰色塗料作為主題,用來襯托屋主造型獨特、顏色繽紛的燈飾、收納櫃與椅燈凳等等藏品,建構出專屬於一家四口的美式作風。

⑤ 簡化硬裝設計打造生活舞台
屋主有國外留學經驗,平時也很喜歡收藏一些造型獨特、色彩繽紛的家飾品,在與設計師討論時希望這些家具藏品可以擺放在新家中,讓收藏成為風格的一部分。為了凸顯屋主帶有鄉村感的收藏,鄭大年總監以灰色塗料作為基底,並將美式風格線板極簡化,打造出一個適合陳列屋主收藏的舞台,像是客廳中的
端景櫃、椅凳、圓形金屬壁掛飾品,天花板的金屬燈飾,以及舊家芥末色絨布沙發,還有隨性堆放的音響擴大機,詮釋屋主自然隨性的美式作風。



⑥ 玄關櫃與備餐櫃整合
台灣許多老屋都是長型屋設計,為了改造成開放式空間,常常沒有辦法擁有出獨立落塵區,導致沒有地方規劃鞋櫃。本案客廳與餐廳相連的開放式設計就屬於無玄關空間,設計師將備餐櫃與鞋櫃整合,滿足回家後的鞋履收納需求,但又不會讓鞋櫃變得突兀、影響動線。備餐櫃特別做圓弧倒角提升安全性。廚房維持封閉式設計,將傳統門片改為玻璃折疊門,呼應美式風格外也增添儀式感。餐椅與燈飾皆是屋主挑選不成套的家具,延續空間混搭風格。



⑦ 以家具風格選擇裝修建材
由於屋主在每個空間都希望陳列自己收藏的家具飾品,因此在裝修計畫上以家具收藏為主角,硬體裝潢則是用來襯托屋主收藏的舞台。廊道延續白色踢腳板、灰色塗料牆面設計,以畫掛裝飾空間,透過可活動式家具飾品呈現混搭風格,也方便未來更換。主臥在做硬裝的時候會選擇中性材質,床頭則運用造型壁紙襯托空間個性,與屋主收藏的櫃體與擺飾十分匹配。靠窗處衣櫃設計增加一座衣櫥中島,打造出開放式的獨立更衣間。長輩房延續造型壁紙運用,但在睡眠區透過架高地板設計取代西式床架,打造符合長輩習慣的睡眠空間。




老屋翻新在基礎工程上已經要花上大筆預算,許多屋主被迫對裝修設計斷捨離,但其實有經驗的設計師可以透過專業替屋主省錢!這間31坪老屋原始的狀態不錯,大量地固定式收納櫃雖然造型老氣但是狀況良好。因此行濶室內裝修設計建議屋主保留全室收納櫃,利用噴漆、更換門把五金的方式進行改造,省下拆除清運費用,將預算拿來翻新廚房和浴室,學會聰明裝修!

⑧ 老鞋櫃重新噴漆
本案原始屋主做了很充足的收納櫃,尤其是落塵區不僅擁有櫃牆收納,還有一座端景屏風櫃。檢視了櫃體的狀況相當良好,設計師建議屋主將櫃體保留,重新噴漆並更換門把五金,並將玄關屏風的背板局部改為長虹玻璃,輔以金屬鑲邊,優化室內廊道採光;石材地坪改為白色石紋磚,一改原始老派風格,變成優雅高級的落塵區樣貌。



⑨ 天地壁以微調取代大幅度裝修
由於本案的廚房與浴室屋主一定要翻新,因此面對客廳區域則希望能在預算內進行改造。設計師保留原始的木地板,電視櫃運用與玄關櫃同色系噴漆進行改造,天花板與立面重新油漆並更換成白色風琴簾。運用地毯、造型椅凳和沙發增添空間風格,不需要耗費大筆預算也能讓原本老舊的屋況換然一新。


⑩ 更換玻璃門片優化餐廚關係
老屋改造中要變動格局一定是最花錢的!因此設計師建議屋主保持原始封閉式廚房,將門扇換成鐵件玻璃造型門,讓封閉式廚房在視覺與採光上更為通透。保留原始備餐櫃,同樣運用噴漆和五金更換改變風格,帶暖色調的灰色噴漆與木地板的色澤相呼應,呈現溫暖舒適的氛圍。由於餐廳區位於通往廚房與私領域的動線上,選擇圓形餐桌而非方桌,創造更安全順暢的生活動線。圓桌也更符合美式風格的設計,搭配典雅的美式風格燈具,在預算內將老屋改造成理想美式宅。


