提醒你

本網站隱私權政策已於2018年7月20日更新,請至閱覽並同意新版隱私權政策,若您未勾選同意而繼續使用本網站,則視為您已同意新版隱私權政策。

登入 / 註冊

會員登入

網友 / 設計師註冊

首頁 > 找文章 > 設計師撇步-設計深度報導 > 《舊屋整型》在台北的天空,落腳

《舊屋整型》在台北的天空,落腳

文字_李寶怡 圖片提供_博森設計
 
設計家,searchome,
 
當設計師遇到舊屋……
這間將近30年的的頂樓公寓,有著老屋常見的漏水、採光及格局不良,再加上頂樓加蓋及內梯動線不便……等等的問題,不過卻因為位於台北市信義計畫區內的住宅區,以及考量其土地持有百分比的優勢,讓時常奔走於兩岸三地從事金融投資業的新屋主,二話不說地買下它,並邀請在看屋過程中熟識的室內設計師──博森設計的潘龍來替新居進行翻修。
 
不管是樓上或樓下的空間中除了有漏水問題,原本一層25坪的使用空間格局也讓整個房子看起來更形狹小,再加上一進門即見上六樓的內置樓梯,風水上也不好,因此設計師在接手後的第一件事,就是解決老屋的基礎工程問題,除了將進排水管線全部更新,也將格局重新規劃,讓此空間成為明亮又時尚的住所。
 
而且在基礎工程翻新後,整個居家空間以開放式手法設計,將原本的三房規劃成二房,而且在隔間及建材上大量引用通透性材質,讓空間感更加寬闊,也使自然光得以引進室內,並保留室外象山的綠意風光,為居家環境加分不少。在風格設計上,潘龍除了以黑白灰三色系來搭配不同材質,並善加利用各種燈具、家具以及材質,精心調配出時尚摩登的氣質。
 
設計家,searchome,
五樓+六樓Before平面圖
設計家,searchome,
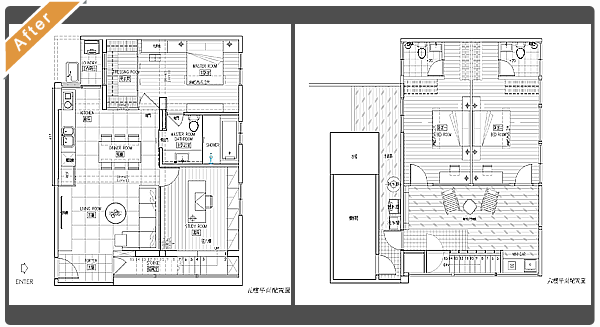
五樓+六樓After平面圖
 
舊屋的問題V.S.及設計師的解決方法
Q1:一進門即看到樓梯,而且整個動線不良?
A:原本的動線規劃,是一進門就看到通往六樓的樓梯,不但在風水上不宜外,另外,讓整個動線感覺樓上樓下完全被切割,而且整個梯子的採光也不好。因此在與屋主商榷後,將整個樓梯的動線改由書房進出,並且用鋼構樓梯線條的方式呈現,讓書房的光源得以進入室內,又不會被樓梯本身阻檔住利用。同時,樓梯下方可以因不同需求規劃不同的收納空間,像是一入門處的樓梯下方則可以規劃一個完整的鞋櫃,將玄關完整呈現。
 
設計家,searchome,
 
Q2:原本三房格局太擠,改為兩房放大空間?
A:原本舊屋隔間過多,導致每個空間不但動線很擠,而且收納空間也不足,因此設計師潘龍刻意將格局重新規劃,讓客廳與書房、餐廳、廚房以開放式的手法串聯,除了利用天花板與燈具配置來強調空間特性,餐桌的靈活配置也讓空間更加自由,屋主可視人數需要挪動餐桌,而餐廳主燈則提供了中軸線強調空間的向度。同時,書房與客廳之間更利用了輕玻璃隔間,讓四個空間在無形中連成一體。而另二間房間則打成一間主臥室搭配更衣空間,並將原本的客衛與書房牆面拉齊加大,並利用暗門設計,規劃兩個出入口,一個可以從公共空間進入,另一個則可從主臥進入,變成私人的衛浴空間。
 
設計家,searchome,
 
Q3:傳統鐵窗太小,而且易有漏水及壁癌等問題?
A:房子因基地的關係,所以三面有採光,只可惜傳統老舊公寓的傳統狹小窗戶規劃,讓原本的採光無法進入,再加上舊窗台己出現壁癌及漏水問題,因此設計師潘龍建議屋主將傳統鐵窗全部更換成玻璃氣密窗,讓光線得以進入室內。而且透過全面施作窗台的方式,一拼解決漏水及壁癌的問題。
 
設計家,searchome,
 
Q4:六樓鐵皮屋的格局採光不佳?
A:由於六樓是早在民國83年即有的加蓋,但層層的鐵窗規劃,再加上前屋主的格局規劃不良,硬是把小小的頂樓空間隔成四間,導致每間採光不好,通風也不佳。因此設計師在與屋主溝通後,將五樓定位為男女主人的活動空間,而六樓則因應未來二位小主人翁北上唸書的空間,而規劃成二間完整的套房使用。而樓梯上來的地方則規劃成一處全家人可以聚餐烤肉的休憩區,鋪上南方松地板搭配一迷你洗水漕及休閒椅。另外,為了讓採光得以進入每間房間,除了保留本身的窗外,在休憩區與房間的牆也用玻璃區隔,並用木作格柵搭配窗簾,保留隱私。
 
設計家,searchome,
 
Q5:處處引用隱藏式設計,解決原本收納不足的問題?
A:空間小,但是屋主的收納機能卻處處要考量到,所以設計師在空間裡運用不少的隱藏式設計,解決收納及機能性問題,像是主臥室以及衛浴空間的入口均以隱藏式設計來表現,設計師利用線條的接續特性將門片隱藏,既維持空間的完整度,也讓視覺得以延伸。另外,在書房內的電視牆上方內藏投影布幕,當布幕降下時可讓書房成為視聽空間,而喇叭則以內嵌的方式配置於天花板上方,網棉也特地更換成白色,在滿足機能性之餘也維持空間的視覺整齊度。同時,在書房通往頂樓的樓梯下方訂製櫃體,內可收納屋主的CD與文件,而預留的高度除了有展示功能,同時也讓自然光可進入室內。
 
設計家,searchome,
 
Q6:施工過程中遇到的問題?
A:原本的玄關十分狹小,因此設計師將樓梯動線更改後,再將原本的結構柱修齊,改為大面落地窗,樓梯下方則可以規劃成落地鞋櫃,不但收納增加,而且鞋櫃門板設計運用鱷魚皮革以及黑色鋼琴烤漆,搭配地坪的義大利金屬磚,多樣性的材質以及間接燈光的設計,帶來化學般地奇妙作用,混合出了時尚與奢華的質感。
 
設計家,searchome,
私房得意技BOX:二進式書桌變變變
設計家,searchome,
書桌的設計以二進式的手法來配置,除了主要放置電腦的桌面,另外也有活動式的滑輪桌,桌子不但可靈活移動,兩側的抽屜更可滿足收納功能,機能性的設計讓使用更加方便。
 
整形舊屋Data
設計家,searchome,
建築形式/公寓
房屋狀況/中古屋
屋齡/20~30年
座落地點/台北市
居住成員/夫妻2人
成員年齡/35~45歲左右
空間坪數/50坪(5樓+6樓)
空間格局/客廳、餐廳、廚房、書房兼視聽室、主臥、更衣間、主臥衛浴、二間套房、頂樓休憩聽
主要建材/北美胡桃木集成材木地板、義大利金屬磚、進口壁紙、黑色烤漆玻璃 裝修預算/NT.450萬元
 
設計師Data
設計家,searchome,
博森設計工程有限公司,潘龍
電話:02-2795-5806
部落格:http://www.bosondesign.com.tw
信箱:boson.design@msa.hinet.net
地址:台北市民權東路六段191巷24號1樓
 
Loading