提醒你
本網站隱私權政策已於2018年7月20日更新,請至閱覽並同意新版隱私權政策,若您未勾選同意而繼續使用本網站,則視為您已同意新版隱私權政策。
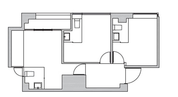
屋況:狹長老屋坪數相當小,本來隔為3間套房作為出租用,決定改為自住後,設計師將2間臥房安排在狹長格局的兩端,將公共空間集合在中央,重整為2房2聽1衛的格局,並善用拉門讓動線更加流暢。


①懸浮櫃體設計 創造空間輕盈感
從玄關開始便以懸浮櫃面來設計,並透過統一的灰色,讓臥房的衣櫃、客廳壁面櫃、廚房的廚櫃更有整體性,且充滿輕盈感

AFTER 圖片提供_奇逸空間設計

BEFORE 圖片提供_奇逸空間設計
②大量運用輕玻,長型空間不長了
為了讓狹長空間更顯開闊感,設計師利用側面大面積開窗引光進入,包括廁所和書房都採輕玻作為隔間,餐桌同樣也以輕玻結合黃色卡典西德創造層次感和空間感。

圖片提供_奇逸空間設計

圖片提供_奇逸空間設計
③立體凸面雙櫃隔間牆,騰空更好收
因坪數有限,以雙面隔間牆的概念設計,將電視牆結合臥房與客廳的雙面收納,並透過凸面櫃體的設計,增加空間感,且爭取更多收納空間。

圖片提供_奇逸空間設計
工程費用_NT.150萬元