提醒你
本網站隱私權政策已於2018年7月20日更新,請至閱覽並同意新版隱私權政策,若您未勾選同意而繼續使用本網站,則視為您已同意新版隱私權政策。

屋主的期望:希望在現代的空間中,能夠注入新古典的設計語彙。

以白色為基調的開放式客、餐廳,透過線板、水晶燈,突顯新古典的設計元素。
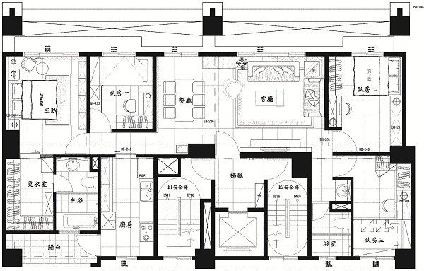
買下位於新北市的電梯大樓,成為一家5口新生活的起點,除了在設計上必須滿足生活機能,同時也必須符合喜愛新古典風格的女主人喜好。
擅長針對不同屋主特質規劃空間風格的戴銘泉設計師,以白色為基調,搭配線板、壁紙、水晶燈等新古典設計元素,融合鐵件、玻璃和幾何線性切割等現代設計語彙,創造獨樹一格的輕古典風。
開放式的客、餐廳,以對稱式雕花線板與壁紙設計的主牆,搭配客廳華麗的水晶吊燈以及餐廳相同系列的壁燈,點出新古典的空間特質。電視牆在線板勾勒的邊框中,運用沉穩的黑檀木皮搭配茶鏡線性切割的手法,巧妙將現代與新古典風格融合。
餐廳和客廳間,利用量身訂製的新古典風展示櫃作為空間端景,凝聚視覺焦點。廚房的門片,則用現代的鐵件烤漆,延續客廳電視牆的幾何線性切割,讓空間調性更完整。主臥房利用不同層次的燈光設計,窗邊放置立燈、單椅、茶几,成為氣氛柔和的閱讀休憩空間,營造飯店式的寢居空間。收納充足的更衣間,透過花卉圖案的磨砂玻璃,創造若隱若現的效果。小孩房則以深淺不同的木皮量身訂製書桌、衣櫃,滿足使用與收納機能。
.jpg)

客廳電視牆在線板框架中,用黑檀木皮和茶鏡幾何切割,巧妙融合新古典與現代風的設計語彙。
Before 現代住宅變身新古典
原本擁有三房格局的新成屋,如同一張空白的畫紙,等待設計師重新上色,勾勒豐富的生活意象。為將現代簡約的住宅變身為輕古典風格,設計師在壁面裝飾、建材選用上煞費苦心,融合了現代與新古典語彙,逐步建構出理想的住宅面貌。

After好住需求清單
希望家中能呈現新古典與現代融合的風格。
主臥房以飯店式設計為主軸。
更衣間能保有隱私同時兼具穿透感。
小孩房實用與收納機能俱全。
線板、壁紙、鐵件打造輕古典
餐廳區以線板、壁紙和水晶壁燈突顯新古典的設計語彙,廚房的門片選用現代感的鐵件、玻璃材質,與新古典融合,創造出輕古典風。

多層次燈光,打造飯店式主臥
床頭主牆以白色線板框架搭配沉穩的裱布,營造寧靜的睡眠空間。對稱式床頭燈,搭配窗邊立燈,滿足閱讀、休憩需求,多層次的燈光設計,成功塑造飯店式寢居氛圍。


亮兼具隱密與穿透感的更衣間設計
主臥房的更衣間,刻意運用花卉圖案的磨砂玻璃,打造出既具穿透感,又能保有隱私的空間。
.jpg)
符合實用機能的小孩房小孩房利用橡木染成深、淺橡兩色,設計一氣呵成的床頭櫃、書桌、衣櫃,滿足使用與收納機能。

