提醒你
本網站隱私權政策已於2018年7月20日更新,請至閱覽並同意新版隱私權政策,若您未勾選同意而繼續使用本網站,則視為您已同意新版隱私權政策。
坪數不大的居住空間,年輕的屋主希望能與時下的小坪數空間來點不一樣的規劃,因此在看過竹工凡木為國民黨設計的空間案後,便決定將這個小空間居家交由其設計。對空間的想像及需求,僅開出:希望色彩鮮艷點但不要太冷調、機能設計要滿足但不要看到太多櫃子及門、線條流暢但要圓融,且不要有銳角的設計等等,便交由設計師來規劃。
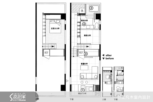
竹工凡木設計研究室將本案設定為「Function Box(機能盒)」,在空間中置入一個長向的挑高走道及三個橫向的盒子。前者是為了讓空氣流通及光線充足,透過一道長向的虛盒子貫穿、連結整個空間,藉由打通這任督二脈,讓流動的空氣及光線溢散整個空間。而後者則是企圖藉由這三個「盒子」,在極小坪數的現實條件下,爭取最大的空間利用。
第一個「盒子」主要是為了爭取更大的空間。在中段高低交界處的死角置入一個「盒子」,藉此整合所有重大機能,包含三台空調機、冰箱、衣櫥、電視、電器櫃及大型收納櫃等,同時也是客廳、客房與臥房的隔間牆。
整合的用意是為了不做天花板而盡力爭取最大的室內垂直高度,以及因為大型電視不用靠壁站立,因此多出更多的水平空間,讓設備脫離天地壁,全部置入這個「機能盒」中。透過有效整合機能需求及簡化空間物件,讓空間中大量的曲線線條能盡情遊走,再者透過曲線的使用也增加空間的圓融感,減少稜稜角角處,進而產生空間放大的效果。
第二個「盒子」在前段,也是為了爭取空間,整合了廚房機能、餐桌需求及業主特別要求的BAR台,同時將前段空間的天花板及牆壁透過窗戶打開,讓每日的三餐與宵夜都有背後的景緻相伴,使得這二坪不到空間成為業主每日必待的場域之一。
第三個「盒子」在後段,同樣是為了爭取空間,手法上讓衛浴空間採用多片Sliding(滑動)的介面,透過不同介面的閉合,讓洗手台空間成為平時室內空間的一部分。真正的廁所只定義在便所空間,打破既有思維──所有機能放在一間廁所的做法。而透過年輕業主喜愛藝術,設計師利用純色系的黃色,透過霧面噴砂玻璃,若隱若現的質感除了讓空間更明亮,同時多了一層藝術氣息。同時,挑高的陽台被轉化為女主人喜愛的泡湯空間,同時利用原木及曲線來呈現優雅的空間氛圍。
而衛浴上方則為夾層的主臥空間,則透過設計過的低矮床架,與開放兼展示的隔間牆,讓較低的夾層擁有更多水平延伸的機會。另外,衣櫥與隔間牆的整合,節省大量的空間使用,同時也有放大主臥的空間效果。
夜間的氣氛燈也與曲線隔間牆造型整合,以及挑高走道的前後採光串連,讓光線與空間串流整個空間,同時在空間裡刻意留出的挑高設計,也讓這狹小的住家有如魔術般,創造驚人的放大視覺效果。

本案的核心理念是「Function Box」,透過一個個盒子概念將空間機能及設計整合。

客廳及客臥、主臥隔間牆面是第一個Box,整合空調機、冰箱、衣櫥、電視、電器櫃及大型收納櫃等,為空間爭取更大的使用空間。

第2個Box整合了廚房機能、餐桌需求及業主特別要求的BAR台,並將前段的牆及天花透過採光罩及玻璃窗打開,讓大面採光得以進入空間裡。

挑高走道,及曲線造型牆內的氣氛燈管,讓光線與空間串流整個空間,純色系的黃色,在燈光營造下添加活潑氛圍。

夾層的主臥房透過透過設計過的低矮床架,與開放兼展示的隔間牆,讓較低的夾層擁有更多水平延伸的機會。

結合衛浴空間的第3個box,讓衛浴空間採用多片Sliding的介面,透過不同介面的閉合,讓洗手台空間成為平時室內空間的一部分。

純色系的黃色,透過霧面噴砂玻璃,若隱若現的質感除了讓空間更明亮,同時多了一層藝術氣息。

挑高的陽台被轉化為女主人喜愛的泡湯空間,同時利用原木及曲線來呈現優雅的空間氛圍。

設計理念:
空間建築不再只是全面性的Construction,而是透過解構的過程,特別是運用現代化科技及參數演算法,找到單一的切入點,期望打破對空間的傳統設計思維及既有框架限制,尋找任何空間設計的可能性,並有效降低工程成本,用純粹洗鍊的手法來處理。
設計師得獎感言
目前市面上的室內設計主流不外乎兩種:一種是空間設計明顯強烈的風格派,另一種是強調簡約低調到不行的現代主義派,因此竹工凡木投入建築及室內設計裡一直試著從中找到另一種可能──專屬客戶的個性化風格。這是我們第二次獲得此獎,除了很感謝評審及網友們對我們的空間設計及理念的支持外,也證明了空間設計的更多可能性。