提醒你
本網站隱私權政策已於2018年7月20日更新,請至閱覽並同意新版隱私權政策,若您未勾選同意而繼續使用本網站,則視為您已同意新版隱私權政策。
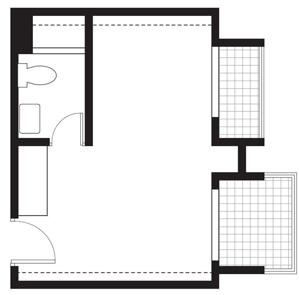
所在地 台北市
坪數 6+2.6坪
格局 下層:客廳、玄關、書房區、衛浴、樓梯;上層:主臥、更衣間
總工程費用 NT.50萬元(含空調、傢具)
主要建材 胡桐風化木、超耐磨地板、不鏽鋼、系統櫃板材、強化玻璃、明鏡
Before



這戶小住宅原始挑高約為 3米6 ,除了浴室外,並沒有任何隔間,但因室內面積只有 6坪,故屋主決定增設夾層來強化實用。
維持客廳挑高,讓小宅看起來不會太過壓迫。而為了避免夾層支柱破壞美觀,設計師改以左右側牆來受力承重。並且藉由錯層設計爭取上下樓層的站立空間,大幅降低了夾層的壓迫感。
高樓層住家通常都有消防管線與結構樑柱問題,因此除了將樑包大一點隱藏管路外,客廳用不及頂櫃牆做開放與封閉的虛實設計,使牆面實用性高卻充滿變化彈性。
靠近樓梯的樑下 30 公分處,用懸空的收納櫃來滿足梳妝檯與收納需求,並增設書桌作為多功能空間。透過胡桐木皮與輕巧線條的串聯,客廳區和夾層及書房、樓梯區,便這樣自然地融合在一起。

高低段差讓夾層更好用。夾層利用三段不同的高低差來做區域分界,爭取站立空間。玻璃小門除可通風外也具瞭望台意象。旋轉衣架則使更衣間效能更佳。

錯層手法增設了書房空間。位在臥鋪底的書房有一堵因應夾層走道下降的木牆,木牆鏤空處可當書架使用,靠樓梯側又因無屏障而能維持上下交流,使畫面簡潔躍動。

不及頂櫃牆充滿機能美。不及頂櫃牆強化璧面整體感並降低壓迫,透過卡其與深紫雙色搭配來輝映暗紅簾幔,搭配白吊燈與深紅天花帶出高貴,空間層次展露無遺。
機能再加分
樓梯側邊變身梳妝展示台。樑下 30 公分處安排 2大1 小的扁長型收納櫃,既可增加坪效又能活潑牆面造型,由於樓梯口沒有圍欄,梳妝打扮時不會有絲毫侷促感。

設計師得意技
「三明治修飾法」輕化夾層。夾層側邊用胡桐木夾明鏡及玻璃隔間降低壓迫感、增加空間通透。兩扇採光窗中央原有一結構凹槽,加裝門片後變身高櫃拓增收納。

資料來源:140期漂亮家居