

小編帶你看好宅
本案是一間位於台北市區的12坪老房子,雖然面對林蔭大道讓它擁有充足採光和不錯的窗景,但老舊的空間也同時出現漏水問題,並且舊有廚房和臥室格局規劃也都不太適當,成為本案急需解決的主要問題之一。
為此,將作空間設計工作室主持設計師張成一選擇從格局著手,首先移動浴室位置到空間的角落,讓空間不因衛浴切割影響格局規劃和其使用性;省略制式客廳設計,改以一座一字型長桌結合下方書櫃設計,構成簡單好用的工作區,並在床尾擺上一張K-Chair,簡單劃分出日常起居空間和臥房位置。同時,為讓小坪數空間的到充分運用,張成一也大量使用複合式機能整合設計手法,將不同機能整合在同一量體裡面,搭配通透的格局設計和輕淺用色,成功許給老屋一個全新面貌,也加入完備機能和收納空間。
打造清爽好用的小坪數居家規劃重點:
1.使用大量的白色,並以機能為出發,不給予空間過多額外裝飾,而是簡單透過材質差異或燈具搭配,為空間加分。
2.巧妙運用同一量體整合不同機能於其中,讓空間既簡單清爽,也能運用較少坪數創造更多機能。
3.一面落地窗引景入室,搭配開放設計手法,讓光線能自由流動於居家之中,創造明亮、通透的生活場景。

考慮空間大小和屋主使用習慣,省略一般客廳,改在起居空間以一座一字型工作長桌,下方並加入書櫃收納,創造小空間的充足機能性;壁面採取文化石拼貼方式,為清爽空間注入一絲粗獷的自然質感。

運用一小階架高地板,區分餐廚區和起居室的位置,並善用建築結構本身產生的畸零空間,規劃一面落地書櫃,滿足屋主書籍收納需求。

配合柱體位置,整合流理台、電磁爐、櫥櫃和餐桌於一ㄇ字型吧台,打造機能完備的開放式的餐廚區。

木質地板、北歐風格家具,雖整體空間採取簡單,卻加入些許古典元素,搭配兩側規劃落地書櫃,讓空間在自然清爽中,更多了一分典雅與人文氣質。

將洗手檯直接規劃在衛浴空間的外側,既不影響其使用性,也有效縮減浴室大小,成功紓減小坪數可能出現的壓迫感;後方並加入整面鏡面設計,以達到空間放大的視覺效果。

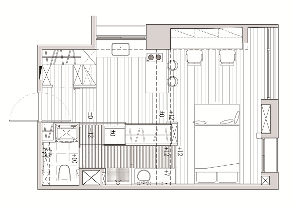
平面圖:before 平面圖:after
小編最愛:
在空間的中央,利用拉門設計將衣櫥、冰箱和進入浴室的另一道入口動線,整合在一整齊平面,讓小坪數空間看來更加清爽,也有效分隔衛浴空間和餐廚區域;尾端並配合櫃體深度,製作一面落地書櫃,一點也不浪費的給予居家完備整體收納機能。

