提醒你
本網站隱私權政策已於2018年7月20日更新,請至閱覽並同意新版隱私權政策,若您未勾選同意而繼續使用本網站,則視為您已同意新版隱私權政策。

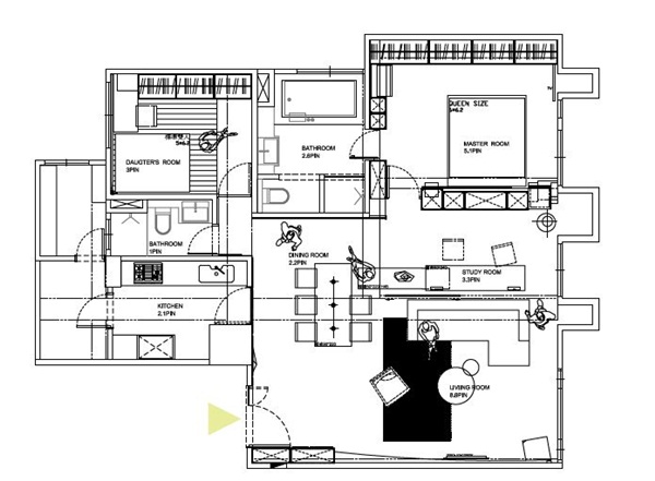
客廳、餐廳和書房動線,以點連成線方式,造就出有趣格局
住家
坪數:30坪
格局:3房2廳
建材:義大利石英磚、橡木鋼刷、噴漆、金屬鐵網、鋁、直紋玻璃

以點連成線,造就出有趣格局
形容這是個「數學之家」一點也不為過,怎麼說呢?原來這個家的主人是位男性,且擁有數學系背景,於是在面對設計時,水相設計設計師李智翔和李柏樟,決定在方正格局中,試圖融入屋主的背景,數學符號衍生空間涵義,動線以點連成線方式,造就出有趣格局,更重要的是,家,兼具了理性與感性。
首先,找出屋主在生活中最重要的起居動線:客廳、餐廳和書房,接著再以數學概念點連成線,破解制式格局,進而也帶出開闊形式。捨棄以牆作為區分空間的做法,改用具穿透性材質,和機能性傢具做化分,延續整體開闊性,也加深空間的自由度。有趣的是,那連續性的鞋櫃與電視櫃面,靈感源自巴黎畫派畫家 Pierre Soulages 的單色系畫作,將色塊概念轉化成實際空間上的色彩鋪陳,以及櫃體運用,藍色向外滲透成為公共空間的主色調,經幾何排列後的櫃體,既富律動感也創造了變化。
擔心空間過於冷調,設計師試圖加入一點木元素,點綴在餐桌、書桌、矮櫃等檯面,以及床頭牆和床頭櫃面,藉由木的溫潤,讓幾何空間裡有了溫度,也多了點感性味道。

那連續性的鞋櫃與電視櫃面,所衍生出的藍色,向外滲透流出也成為公共空間的主色調。

衣櫃櫃面則是將橡木洗白,再將它切割成條狀,拼出來的效果好似人字型拼法。

將數學符號: 、 、∪等變成了把手,在木空間裡,也能隱喻數學理性思路。

餐廳牆的褐色以噴漆方式呈現,恰好與一旁的木質餐桌相呼應。

藍色向外滲透成為公共空間的主色調,經幾何排列後的櫃體,既富律動感也創造了變化。

床頭門片先利用染色再進行噴漆,呈現出深色系的木質感外,也藉由 LED 燈源映照出木材紋理。
Wood X Trend
木工法:橡木特別經過鋼刷處理,讓木紋脈絡更加鮮明,在染色或上色之後,也不用擔心肌理因顏色而受到了影響。
木異材質:木質素材的運用,搭配了金屬鐵網、鋁等材質,木頭創造感性,鐵網和鋁則是帶出理性,交會運用,創造衝突感也隱含設計思維。
資料來源:143期漂亮家居
水相設計 設計師 李智翔、李柏樟 網址 www.waterfrom.com 信箱 info@waterfrom.com