提醒你
本網站隱私權政策已於2018年7月20日更新,請至閱覽並同意新版隱私權政策,若您未勾選同意而繼續使用本網站,則視為您已同意新版隱私權政策。
DATA
建築結構: 木屋搭配鋼骨結構
空間格局: 餐廳、客廳、廚房、睡榻、閱讀區
基地狀況: 谷地
基地面積: 786.5坪
建地面積:30.25坪
總坪數: 30.25坪
建築總額:NT.230萬元
屋齡:2年
買一塊好地蓋房子,你會選擇一塊平整的平地?還是崎嶇的谷地?或許許多人會偏好前者,但看在屋主與建築師林淵源的眼中,本案這塊後高前低的頑劣谷地,卻是有趣極了。打破制式的住家形式,以「微建築」的角度出發,經過多次提案、討論、再推翻的過程,好不容意完成這間別具特色的山林度假屋。
隱身於新竹縣寶山鄉水庫附近的T House,又有諧音「tea House」的意思,是一棟架構在山凹處的度假屋。順應地勢發展出的建築型態,以染黑的杉木板作為表面材質包覆整棟房子,讓它能完美融入周遭環境;建築中央凸出一只玻璃盒子,加上前方的一窪水塘,乍看令人仿如置身國外,但誰也想不到的是,這塊基地最初竟是一塊賣不出去的土地。
順應地形而生,由自然長出的建築
多年前,從事土地相關工作的屋主,因為受朋友所託,將位於新竹縣寶山鄉水庫附近的閒置土地進行重整,並計畫性地將它化為18塊特色各異的基地進行販售,但當所有土地幾乎售罄的同時,他卻發現這塊三高一低內凹谷地,卻因為難以想像其所適合的建築樣貌,依然乏人問津。
在決定買下這塊基地與其鄰近的另一塊地之後,他找來曾有過一次合作經驗的建築師林淵源,提出兩階段的建築計畫,而第一階段就是在這塊山凹處,搭建一棟度假小屋。
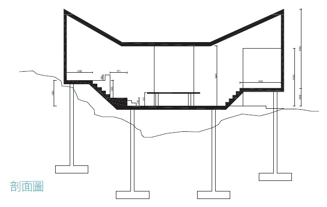
規劃上, 林淵源認為:「世界上並沒有不對的土地,而是我們要選對正確看待土地的方式。」而建築即是土地的一部分,不用賦予特定風格,應該是讓它從直接從土地自然長出來。在仔細觀察這塊基地之後,衍生出「搭一座橋」的概念,運用鋼骨結構自凹間撐起整棟建築,並跨越中央的小型溝渠重新銜接起兩邊高地。空間兩側,則順應地勢上升而揚起,反應到建築的內部,則成為兩側高起的小閣樓,分別作為閱讀區和晚寢的臥榻區,下方則給予簡單收納機能。
不同於日常住宅規劃,THouse以度假為明確訴求,對於私密性的要求相對較低,並且基地本身風景和採光條件都很好,運用大量玻璃材質,打造明亮且通透的視覺效果,是最初就溝通好的共識,甚至連浴室,林淵源都索性採取同樣手法進行規劃;避免任何隔間規劃,運用高低差的手法創造各自區域與屬性。
以餐廳為核心主導空間的發展
將房屋的主要用途設計在度假或三五好友聚會的交誼廳使用,格局規劃也打破過往以客廳為主導的概念,運用一張大餐桌,將餐廳為核心向四周開展,讓整個空間像是一只大帳棚,或是一座劇場,而美食、人與人的互動關係,則是生活重點。雖然外觀像是一棟木屋,但內部規劃卻相當具有
現代感,運用簡單而細膩的線條和材質結構,提供最基本的使用需求,而不刻意彰顯任何華麗材質,反而透出一股恬靜自適的生活感。
除了實用的機能面向,也希望能夠賦予建築更多浪漫想像,善用不同面向的間接燈光,為空間暈染一層淡淡光暈,而中央凸出的玻璃盒子,是能遠眺整座山林小徑的觀景台,也隱含滿溢的幸福感之意,就像是咖啡上幾乎滿溢出來的奶泡一樣,為生活創造更多細膩而溫馨的小確幸。
1. 不再讓客廳來主導居家,而是將餐廳為核心做開展,讓美食、互動成為生活
重點。

2. 位於居家中央的餐廳,能一覽戶外景致。

3. 將客廳退至居家的角落,利用傢具佈置出簡單機能;建築後方則考量安全問題,與山壁間保持一小段距離,額外形成一個後庭院。

4+5. 以玻璃打造的半圓形浴廁,讓人連沐浴時都能感受與自然合一。

6. 地坪利用自平水泥方式,創造不同於Exposy和磐多魔的自然質感。

7. 順應自然而生的建築形式,特殊弧型屋頂與自然融為一體。

8. 運用大面開窗,讓陽光自樹梢透入空間帶來光影變化,成為居家最美裝飾。

9. 一改居家大面開窗設計,在閱讀區的小閣樓側牆,做一橫向低窗,既是空間
的視覺焦點,也能在躺臥時方便觀景。

10. 採用大量玻璃打造穿透視野,是規劃之初就已有共識的手法,而開窗位置則取決於使用需求和景致,譬如建築右側的大面窗戶,能讓居住者自屋內看見坡地
上的花草景致。

11. 「T House」因應地勢轉折,自然形成的T字型,是建築名稱的由來,也有諧音「Tea House」的意思。

12. 特別請日本園藝師父規劃的小徑,一路蜿蜒來到位於谷地上方的「T House」,也引領訪客由遠而近從不同角度觀看建築多元樣貌。

13. 建築的後方是日治時期留下的4個相互連通的防空洞,被重新清理過後,雖
尚未決定用途,但即便只是空著也是個不錯的選擇。

14. 建築的入口規劃一個內凹的小亭子,營造回家的安定感,四周再打上微暈的間接燈光,賦予居家玄關更多浪漫想像。插

關於。建築的Key point
順應地形紋理,讓建築與環境產生互動
林淵源認為,每一塊土地都有它們獨特的個性,而建築應該順應地勢進行發展,他提到:「我們應該是去傾聽土地的聲音,用謙卑的方式去設計(建築),那麼土地自會送你禮物,而不是設計師自己一個人在『強說愁』。」在確立建築內部需求之後,以此為核心,由內而外順應地勢自然發展出的建築型態,特別選擇染黑的杉木板作為建築表面材質,讓它能適度被隱藏起來,降低對環境原始樣貌
的破壞,自內則藉由大開窗,引入源於自然的山林美景,也讓室內與自然產生互動關係。
不同面向的開窗設計
開窗除了引入採光之外,導引視覺發現環境焦點,自然而然成為居家的一部分。以本案為例,在建築的內側規劃整面大窗,讓人能一眼就望見坡地上高彩度的花藝植栽,但近門處的閱讀區,卻僅在牆面低處留下一道小窗,讓午後小憩時,能躺臥輕鬆欣賞周遭景色。
大量溝通建構彼此的信任感
雖然整體建築花費2年半的時間進行討論與設計,但實際施工的時間,卻僅僅短短4個月。除了建築體本身結構簡單外,屋主認為,更重要的是不要「越俎代庖」,而是信任建築師自身專業,並不干涉實地施工情況,但令他印象最深刻的卻是當自己第一次看見家中衛浴設計時,他笑說自己當下第一個反應,就是跑到附近的山頭四處看看,確認它具有足夠的隱密性時,才放下一顆懸掛在空中的心。


資料來源:145期漂亮家居
※本案將於2014年3月1日(六)《設計家》電視節目中播出
《設計家》播出時間:
【非凡新聞台CH58 】
首播 (六) 深夜 24:00
重播 (日) 上午 10:00
【TVBS歡樂台CH42】
首播 隔週六 晚間18:00
OFFICE DATA 建築師/ 林淵源 信箱/ linyuan.yuan@msa.hinet.net 林淵源建築師事務所 /LIN YUAN YUAN ARCHITECT