提醒你
本網站隱私權政策已於2018年7月20日更新,請至閱覽並同意新版隱私權政策,若您未勾選同意而繼續使用本網站,則視為您已同意新版隱私權政策。
「舒適不只是物質感受,更是一種完美氛圍」的理念。對於二次自地自建的屋主一家,沐澄設計張惠靖總監將透天依照居住者需求做細膩配置,採用開放式手法創造寬敞明亮的公共空間,更因應屋主一家六口與多隻毛孩,區分寵物洗滌區與家事間,與屋主共創完美生活氛圍。
✔ 格局不受管線束縛
自地自建從建築外觀、水電管線、建材使用都能自由配置!本案每一間臥室皆採取套房設計擁有獨自衛浴,不受管線間限制。九間衛浴都是採用不同的進口磚;升級建築防水並採用VRV空調系統,從零開始實踐100%客製化。



✔ 工程自由度高
自地自建工程自由度高,室內外建材、廚具等都可依照預算和需求配置。此獨棟空間選擇Cleanup日系廚具,並在用餐區運用inax健康磚,調節室內濕度改善空氣品質; 戶外運用植生牆與室內相呼應,營造盡善盡美的生活空間。



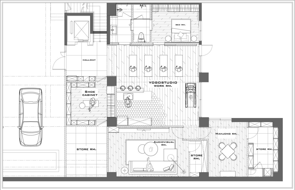
✔ B1私人娛樂空間
地下一層、地上三層的自地自建透天宅,B1設定為家庭成員主要娛樂空間,配有健身區、瑜珈室打造Home Gym,規劃KTV室創造家人放鬆歡聚的空間,精緻衣帽間、一間客房與三分離式衛浴,讓親友來訪時能有舒適留宿空間。




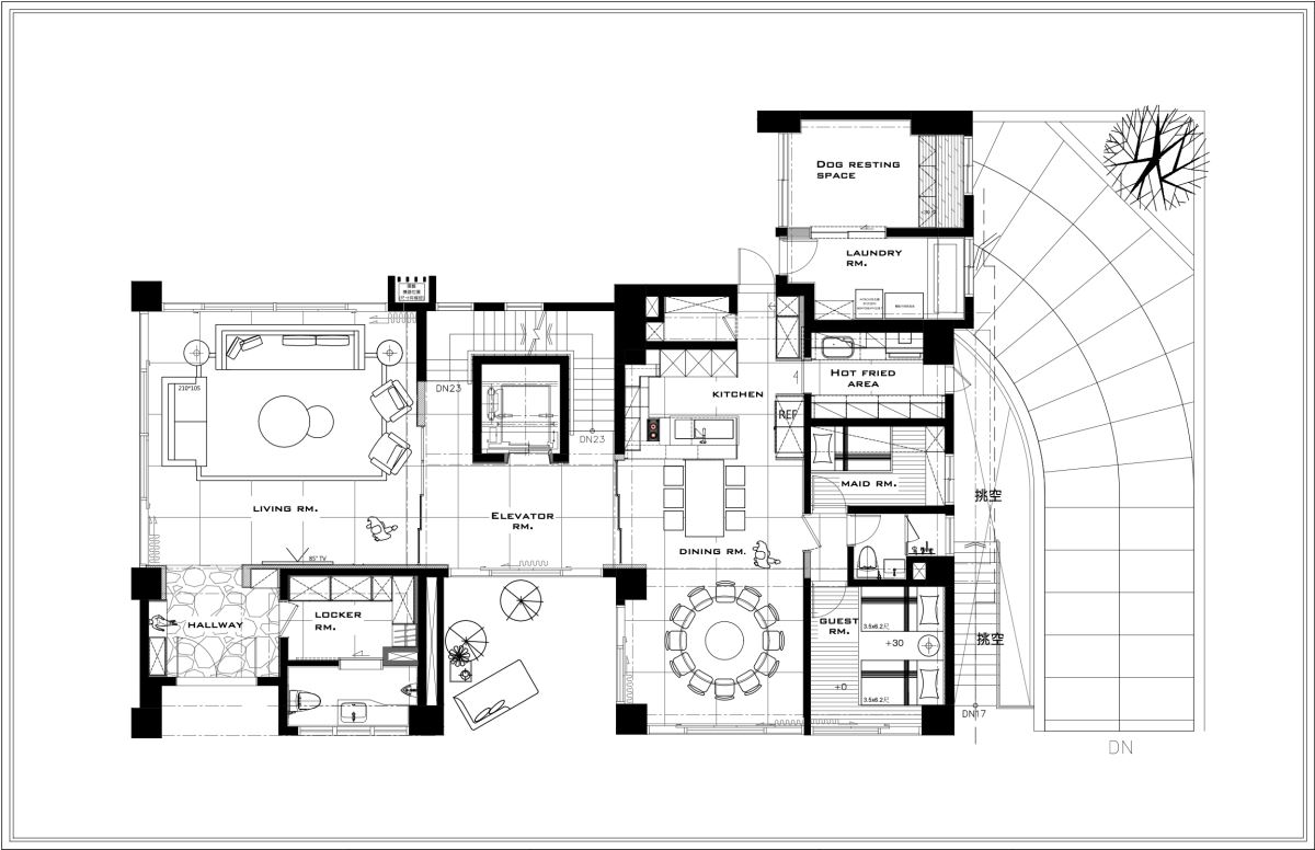
✔ 1F待客交誼空間
透天具有分層規劃生活空間的優勢。一樓公領域打造成招待賓客的開闊空間,大面落地窗引入採光與綠意,提供舒適體面的迎賓環境。餐廚區細分為中島區、熱炒區與食品區,並配置可容納20人的大圓桌,建構豐富完善的交誼機能。




✔ 套房式寢居空間
寢居空間規劃於二三樓,依照屋主喜好挑選建材與配色,每間臥室皆規劃獨立衛浴方便使用。2樓主臥設計體現沈靜大氣氛圍;三間女兒房透過主題色奠定個人風格,此外私領域還規畫私人起居空間,創造團聚空間。






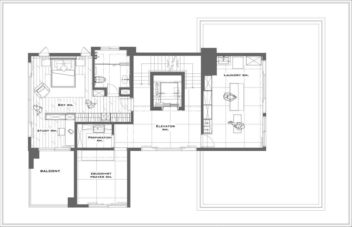
✔ 多元機能型場域
3樓兒子房以格柵從立面延伸到天花板,凸顯臥室造型,磁磚也是比較剛性的淺灰調性。特別預留寬敞的空間規劃洗衣房,規劃晾曬、烘乾與收納區域,化惱人的日常家務成為便利舒適的生活體驗。




