提醒你
本網站隱私權政策已於2018年7月20日更新,請至閱覽並同意新版隱私權政策,若您未勾選同意而繼續使用本網站,則視為您已同意新版隱私權政策。
「格局方正」幾乎是台灣人選房子的第一要素,可是當看到國外有各式各樣格局的房子,擁有各種天馬行空的創意設計時,又羨慕得很,卻怎麼也不敢跨出那一大步,將現實與夢想結合。
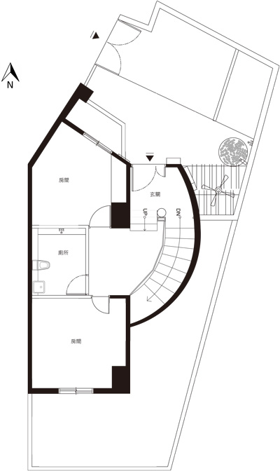
這次白金里居空間設計遇到了一個很大的挑戰:一間略呈圓弧形、完全沒有方正格局空間的五邊形房子,地下室還比一樓大 1 倍多!光線部分,只有靠窗處勉強吸收得到自然光,地下1樓後端還因為整棟大樓機械車位的關係,地面有 5 坪空間突起了 80 公分,這間房子依照傳統買房定律,左看右看都不是「好」房子。屋主是異國夫妻,對傳統風水問題並不在意,要的只是舒適的生活空間。
林宇崴設計師當初接觸到這個 case 時不覺得棘手,反而十分開心,因為站在設計的角度,這間超特殊格局的房子正好可以巔覆傳統,盡情揮灑創意,在兼顧生活與創意之間,林宇崴還加入了綠意盎然的環保概念。當房子整個大變身完成,每個看過房子前後轉變的人,真的只能用「目瞪口呆」來形容。
Before 平面圖
After 平面圖

變身1:一樓玄關
踏進一樓玄關就分成往一樓及地下一樓兩個出入口,原本一樓地板架高後,只做了半高的護欄(圖1)。新的玄關則採用清玻璃與鐵件結合,做出摩登台十足的屏風,以摺紙為概念,讓穿透式的設計搭配四時陽光,就能在白牆上產生重疊光影,而由天花板垂吊而下的燈飾,成了一幅自然的後現代畫作,讓玄關空間更散發華麗的光芒(圖2&3)。
Before -圖 1 After-圖 2

圖 3

變身2:一樓客房
從玄關進到一樓後馬上就是分別通往客房及書房的入口,而出入口改以拉門區隔,讓這個開放式的客房隨時可以變身客房使用(圖4&5)。
圖 4

圖 5

變身3:一樓書房
這間特殊格局的房子只有靠窗部分可以吸收到自然光,但窗戶不大,而且屋外的樹木也擋住了光線(圖6);屋外其實有許多花草樹木,這在台北市來說相當難得,於是設計師整理了屋外的小園圃後,,而滿牆的書櫃部分塗刷成鮮黃色,更為這個空間帶來活潑的青春氣息,整個房間的明亮感向上提升200%(圖7)! 書牆的盡頭連接著小小茶水間(圖8)以及衛浴設備,讓一樓的生活機能完善,可以變成獨立的生活空間,若要與地下一樓分開使用,完全沒問題。
Before-圖 6 After-圖 7

圖 8

這僅僅是佔了家裡1/3的一樓大變身,就讓人驚豔不已,接下來跟著小編走下階梯,看看大刀闊斧改造的地下一樓,看看夢想與現實的完美結合。(未完,待續)