提醒你
本網站隱私權政策已於2018年7月20日更新,請至閱覽並同意新版隱私權政策,若您未勾選同意而繼續使用本網站,則視為您已同意新版隱私權政策。

.jpg)
小編帶你看好宅
本案位於新北市三芝,為一個從環境、建築、室內、景觀一氣喝成難得的完全設計案,對於材料、質感、型式、光線皆細細斟酌。屋案位置依山傍海,擁有絕佳的自然景觀視野。因此,如何掌握居家空間與自然環境之間的平衡關係,成為本設計案的核心理念。
設計師透過事前詳實的基地及環境調查,不只考量屋主的新住民身份,同時重視回復基地上共存與既有的生物,建立起一個符合適地環境生態的宜居棲地。此外,設計師全程關注工程的操作與進行,幾乎每兩天都會從台北到工地現場巡視,確保施作確實落實設計的概念。
由於重視內部空間與外在環境的互動關聯,設計師利用採光與景觀的優勢,分別在餐廚與臥室外側安排了室外陽台,藉由陽台空間結合窗戶設計,將明亮的自然採光引導到室內空間之中,而陽台的設計也讓使用者能在無拘無束的空間感裡,眺望遼闊無際的山海景觀。此案中,設計師試圖透過光影、時間、構築性、共生、嵌入等概念進行設計的舖陳,同時結合屋主的信仰價值於設計之中,完成讓屋主深刻感動的居家設計。
而室內空間的美感設計與機能安排也呼應著輕鬆自然的生活感。大膽而明亮的芥黃色牆面成為公共空間的視覺亮點,對應著潔白優雅的客廳區域,共構一場愉悅的色彩饗宴。走進餐廚區域,以木材質為主要櫃體元素,讓木質感與陽光相互對話,打造自然無壓的氛圍。臥室空間則結合起居室設計,並且大膽運用藍色與紅色構築牆面,帶來獨特的空間個性。
打造居家風格關鍵
1. 利用實木、石材、磚材等具有自然質性的元素,搭配鐵件、玻璃等質感較為俐落的材質,對應出屬於現代居家的自然氛圍。
2. 大膽明快的顏色使用,不但能為空間營造獨一無二的個性,同時也能增加視覺層次感。但需要注意用色的比例與面積,才能拿捏恰到好處的美感。
.jpg)
芥黃色的端景牆與純白優雅的客廳形成對應,並自然營造出格局層次感。
.jpg)
在充滿現代感的家居空間裡,混搭帶有微微復古風格的木質櫃體,展現獨一無二的個性之美。
.jpg)
餐廳與廚房空間採取開放式設計,並以輕食吧檯加以區隔,讓生活節奏更加愜意。
.jpg)
臥室空間結合起居室設計,加上明亮開闊的採光設計,創造無拘無束的自在生活感。
.jpg)
大膽的藍色與紅色構成臥室空間,搭配優雅的白色,形成令人著迷的藝術氣息。
小編的最愛
駐足於臥室之外的休憩陽台,山光水色盡收眼底,寬廣壯闊的景色讓人忘卻生活裡瑣碎的雞毛蒜皮,整個人的身心都被清淨滌空,真是非常棒的陽台設計。
.jpg)

地下一樓平面圖 圖片提供_達觀總合設計
.jpg)
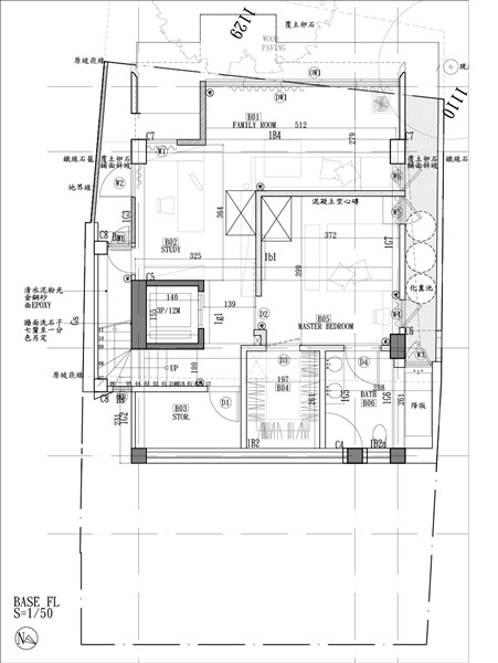
1樓平面圖 圖片提供_達觀總合設計

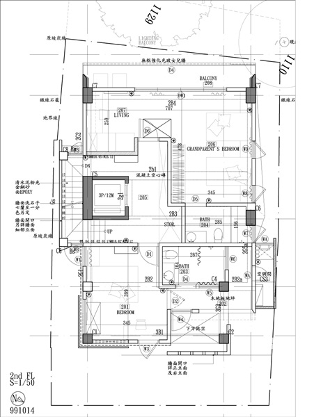
2樓平面圖 圖片提供_達觀總合設計
.jpg)
3樓平面圖 圖片提供_達觀總合設計

側視圖 圖片提供_達觀總合設計

室內走道側面示意圖 圖片提供_達觀總合設計

立體房屋模型 圖片提供_達觀總合設計

立體房屋模型 圖片提供_達觀總合設計