
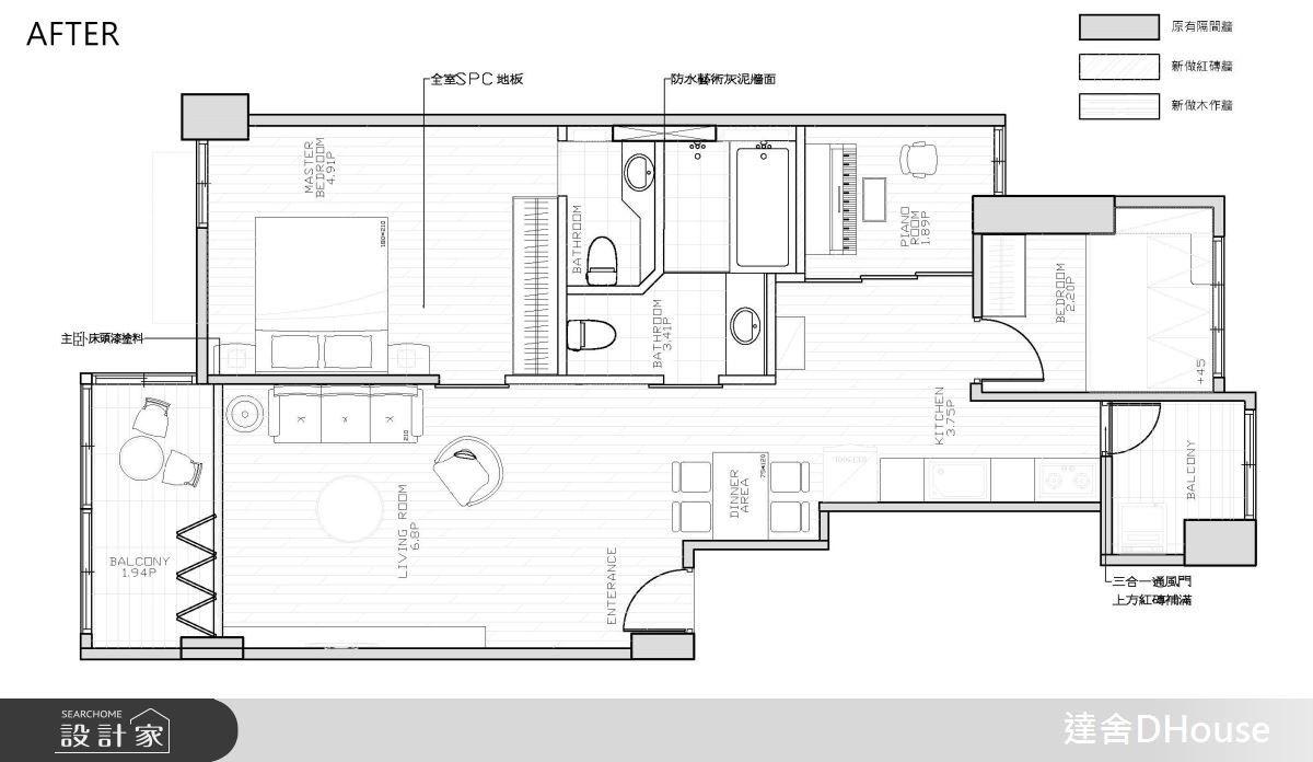
屋齡超過30年,原本格局空間分配不當,臥房較多衛浴狹小,部分架高地板造成空間壓迫,不合理的隔間影響光線穿透,通風不良導致老屋潮濕壁癌問題。根據居者需求,調整格局變更動線,讓日光及視線得以穿透到房屋後段。透過基礎工程翻新、格局動線佈局、多元材質堆疊,成功將不適合居住的老屋,重新改造為久住宜居之所,著重以光影變化、手感塗料呈現歲月的痕跡,融入生活美學的靜謐住宅,讓氣質女屋主創造出更好的生活循環。


1.陽台:
拆除前陽台內隔間,讓空間得以與客廳串聯,產生延伸放大的效果,但上方存在一支明顯樑柱,改以木質包覆,轉移視覺感受,虛化樑柱存在感,木造玻璃拉門取代制式隔間,界定場域又能保有穿透感,可視需求彈性使用。



2.客廳&餐廚:
老屋採光主要來自於屋前陽台處,屋後因棟距較近,影響採光。原本阻礙前陽台光線與通風穿透的橫向隔間牆,影響房屋後段變得陰暗、潮濕與嚴重壁癌。老屋翻新拆除多餘牆面後,公領域得以串聯陽台、客廳、餐廳及廚房,視野寬敞空間放大,並將屋前的自然光線引光入室,充滿光影變化的美好景致,讓屋主走進家門、走出主臥時都心情愉悅,不論在沙發休憩或餐桌工作時,映入眼簾的綠色植物與溫潤木質拉門,烘托療癒的氛圍。一字型廚房滿足日常料理需求,上方以開放層板取代櫃體,釋放空間,製造視覺放大,還可擺放心愛的杯盤收藏。




3.主臥&客房&琴房:
主臥與衛浴空間重新規劃格局,調整主臥房門入口的位置及方向,空間感倍增,拉門也增加穿透性,床頭牆捨棄過度裝潢,施以簡約的灰色調,圍塑極簡無壓的舒眠場域。專屬琴房能擺放大量琴譜,讓屋主沉浸在音樂旋律中。客房臨窗處規劃臥榻,溫潤木質讓休憩感受更濃厚,下方也能集中收納。




4.浴室:
原衛浴空間位於房屋中段,無法設置對外窗戶,排風扇通風管也無法接入管道柱,產生通風不良。老屋改造後,徹底根除問題,考量日後居住人口增加方便使用,將全套衛浴設置在公領域,公領域的浴室包含全套衛浴設備,分區配置長型洗手檯面、淋浴區、浴缸,結合暖風排風扇等功能,提升沐浴環境的舒適度。主浴保留半套衛浴設備,弧形門拱與不規則洗手檯設計,美感與實用兼備。


