提醒你
本網站隱私權政策已於2018年7月20日更新,請至閱覽並同意新版隱私權政策,若您未勾選同意而繼續使用本網站,則視為您已同意新版隱私權政策。


以白色為基調,襯托出整體空間寬廣、清爽,並運用對稱元素,線板和卡拉拉白大理石等設計,搭配屋主原有的威尼斯鏡,適時地為空間融入淡雅的質感。
具設計背景的屋主,對於居家的質感與品味有一定的要求,在耀昀創意設計的規劃下,讓整體空間明亮、寬敞,也為屋主勾勒出溫馨滿點的居家。
你想為全家人打造一間什麼樣的生活空間呢?擁有設計背景的屋主,渴望回到家能擁有一個可讓身心徹底放鬆,也能盡情展現全家人美學素養的甜蜜天地,因此在買下這間座落在鄰近捷運站旁的新成屋後,透過朋友的介紹,請來耀昀創意設計來改造。設計師蔡昀璋在與屋主充分溝通,審慎考量屋主的生活習慣與喜好,決定為這個空間形塑出清新、放鬆的居家風格。
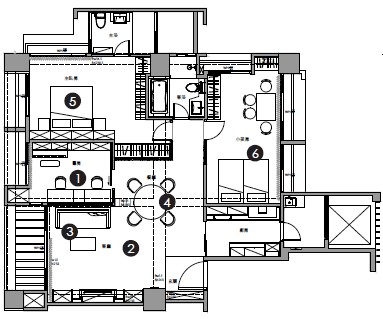
這個案子原本有四個房間,但因使用坪效不大,而且家庭成員簡單,為了讓公共空間更寬敞,因此蔡昀璋改變原本主臥入口位置,並內縮隔間,將空間留給餐廳。為讓屋主一家人既能共享書香與樂章,也不會造成公共空間的侷促,設計師拆除書房與客廳之間的隔間,改採半矮牆搭配木百葉,不僅讓視野可延伸,達到放大空間的效果,也不會阻隔家人間的情感交流。
由於原先二間小孩房坪數過小,屋主夫妻考量到二位女兒在各成長階段的不同需求後,請設計師拆除隔間,將二房合併成一大房,讓一對寶貝女兒既能享有生活質感,也為姊妹的情感加溫。

結合茶玻與茶鏡作為廚房拉門,不僅解決料理時的油煙問題,家人情感的交流也不因此被隔絕,同時延伸視覺張力,放大空間的尺度。
以風格為設計主體,形塑空間視覺層次感
為了因應屋主在收納機能的需求,從一進門玄關處,設計師特意以整體白色線板造型的收納櫃一路延伸到電視牆右方,更顯公共空間的寬廣、清朗,而錯落有緻的展示型收納層板,讓屋主的珍藏品為空間
增添優雅品味。
在色彩運用上,為滿足屋主喜好清爽、明亮的美式風格居家,設計師以白色為基調,搭配公共空間的藕灰色,女兒房的粉紅色與主臥房的灰藍色,共同譜出家的動人樂章。
設計師解讀屋主需求
1.長期處於高壓力工作環境的夫妻兩人,渴望有一個清爽、明亮的美式風格居家。
2.二小房合併成一大房成為女兒們的小天地。
3.半開放式書房讓屋主閱讀之餘也能與家人聯絡情感不間斷。
S o l u t i o n 6
01格局 拆除實牆換得視覺的奔放感
由於客廳原本隔局過於狹小,不符合屋主期待的寬敞公共空間,在設計師的建議下,拆除書房與客廳間的隔間牆,改採半開放,搭配木百頁窗的方式設計。不僅顧及到隱私性,也能讓公共空間更舒適。

02機能 運用櫃體形塑空間線條
為消弭原本格局的樑柱問題,以櫃體從玄關延伸到客廳右方,還原空間俐落無瑕的空間感。櫃體也以展示結合隱藏的設計手法,滿足屋主的收納需求,同時兼顧居住者不凡的生活品味。
.jpg)
03色彩 掌握色彩搭配,營造放鬆舒適的居家
面對生活中的各種壓力,回到家總是希望能卸下緊繃的情緒,徹底紓緩身心,因此設計師運用色彩的影響力,以白色為主要色調,佐以藕灰色、粉紅色與灰藍色,為屋主打造一間放鬆清新宅。
.jpg)
04動線 主臥入口改向,整合動線放大公領域
調整主臥入口位置後,從公共空間進入私領域動線完整而順暢,並縮減主臥入口處寬度,藉此創造出寬敞、舒適的用餐環境。
.jpg)
05風格 線板帶出整體空間設計主軸
在一個純白的空間中要製造出多變的光影表情,同時滿足居住者對家的需求,因此設計師運用線板做為整體空間設計主軸,搭配燈光、石材和屋主原有家具,風格主題完整,增加視覺層次感,也多了一分趣味性。
.jpg)
.jpg)
06格局 二房合併成一大房為情感加溫
一雙女兒是屋主夫妻最珍貴的寶貝,為了給他們一個舒適的生活空間,將原本緊鄰的二間房合併成為一間女兒房,女兒們各自所需的生活機能因此更加完整,而這個空間也將成為女兒們的秘密小天地。
.jpg)
設計理念
擅長整合材質與設計,並因應格局,調整設計手法,除了解決空間問題及滿足使用者的生活機能外,在風格及氛圍的營造上也相當重視。

平面圖提供_耀昀創意設計
資料來源:158 期漂亮家居