提醒你
本網站隱私權政策已於2018年7月20日更新,請至閱覽並同意新版隱私權政策,若您未勾選同意而繼續使用本網站,則視為您已同意新版隱私權政策。
住了十多年的老屋,在一家四口中兩個男孩也逐漸長大之際,屋主夫妻費心找上楊俊華設計師,以兩人最愛的低調奢華為設計主軸,活用材質的變化賦予新的居住生活體驗,將一家人的心更聚攏在一起。

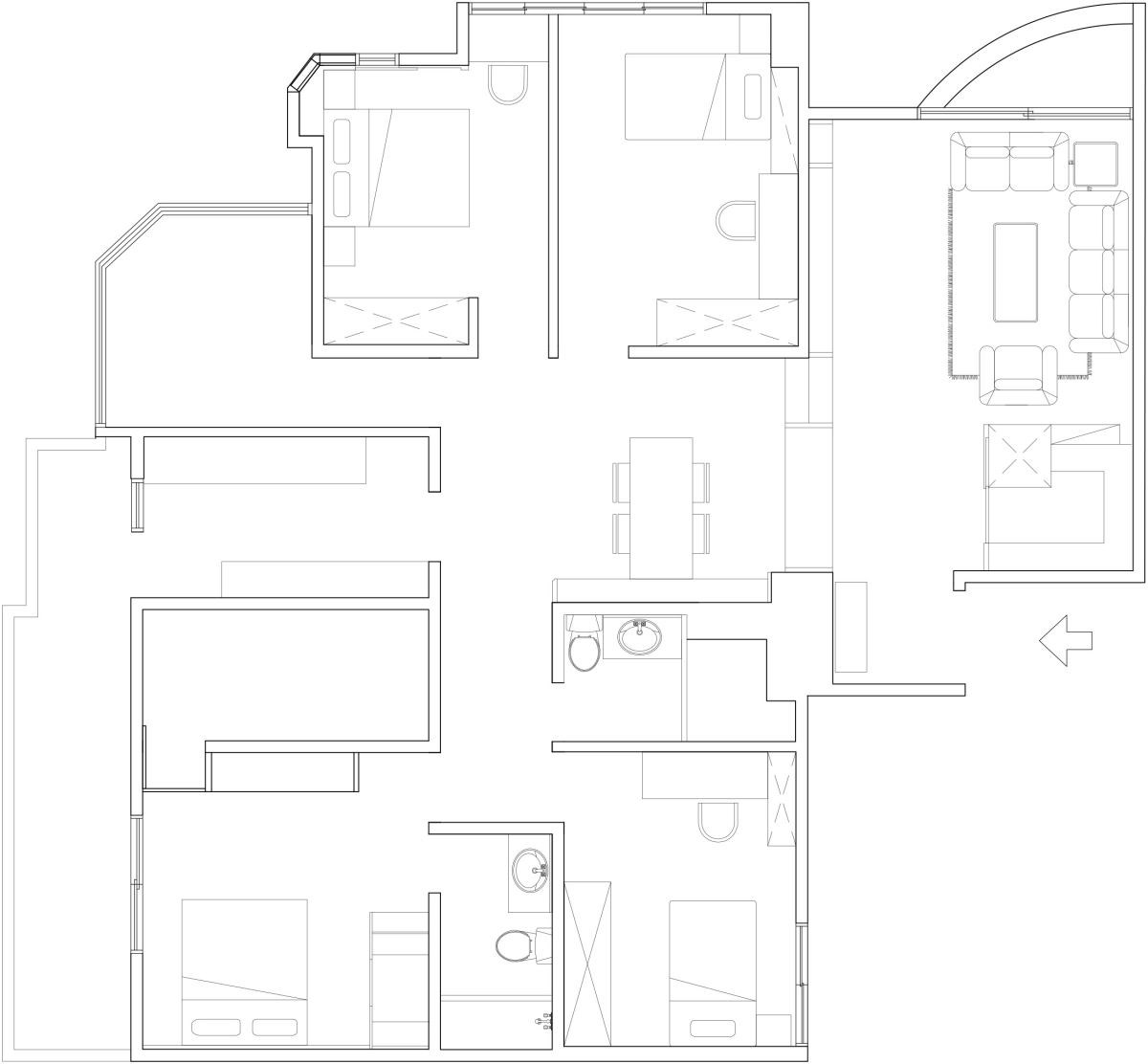
一家四口居住了十多年的老屋,因為當初買下時保留原屋主的裝修而未加以調整,隨著兩位男孩逐漸長大後,空間逐漸不敷使用,除了獨立衣帽間和化妝間的需求,屋主夫妻希望能讓兩個小孩都各自擁有屬於自己的臥室,同時還能兼顧機能性,設置書房及客房,將原本的四房兩廳,改為五房兩廳,楊俊華設計師在平面格局的安排上,先釋放舊有格局中的一間廁所,再重新調配每個房間的比例後,順勢達到屋主夫妻的需求。

媒材自然混搭,凝聚情感和空間溫度
男主人喜歡顏色沉穩的低調奢華風格,女主人則想要豐富收納機能的衣帽間及專屬化妝室,在風格和色彩的營造上,楊俊華以呈現建材本有的質地為主軸,進門玄關處為修飾大樑壓頂,用圓形內凹設計,拉提整體空間的高度,而端景牆則選用大理石加上進口玻璃表現非凡氣勢,客廳空間則延續同樣語彙,電視牆以大理石鋪陳,結合進口玻璃,和立體造型板的沙發背牆相互對話,一旁則結合權木木皮染黑綴上黑鏡鏡帶,引領而出端景櫃的高雅氣勢。


設計師解讀屋主需求
1. 不張揚的低調奢華風格。
2. 增加一房空間,讓兩個兒子各自獨立。
3. 擁有分別獨立的衣帽間和化妝間。
S o l u t i o n 4
在營造奢華風格之中,楊俊華認為成為視覺中心的而存在的主牆是非常重要的,因此在進入餐廳後,便設定緊靠餐桌的餐邊櫃做為此空間的主角,再度利用黑鏡、進口玻璃和權木木皮染黑,並將隱約透著大馬士革圖紋的進口玻璃放在用餐時的視線高度,自然不張揚的透漏奢華底蘊。
01 設計 藉由光源指引動線
從進門玄關至客廳,天花板不做主燈,反而以長形的光帶,結合天花板設計,串聯兩個空間;而餐廳進入臥房區的轉折,同樣使用光帶的手法,以燈源做為空間動線的指引。

02 色彩 大地色系營造舒適質感
在色彩的選用上,設計師不以油漆或烤漆的方式藉此表現空間顏色,反而利用質材的原色,並選用深色系的權木木皮降低整體空間色彩的明亮度,達到舒服耐看的長久居所。

03 設計 一體兩面的化妝間
主臥房一進門處就可看到一面對外開放的櫃體,既做為收納及展示的端景櫃,另一面則是集中收納用的化妝間,以特殊造型的開門加上 LED 光帶,營造使用者出入時的精品感受。



04 建材 強調材質質感的高雅用法
為滿足屋主夫妻對低調風格的想像,捨棄富麗堂皇的雕花裝飾,設計師慎選材質,活用建材原來的質感,藉由光影的位移,隱約而高雅的將高雅質感流瀉而出。

主臥房為以放鬆休息的舒適感為主軸,天花板不裝置主燈,均以光線柔和的壁燈取代,因此設計師特別選用圓形壓紋的造型板,柔和整體氛圍。男孩房則為了強調沉穩的氣質,加上權木皮染黑做為櫃體,使做為床頭主牆個性獨特的造型板跟著流露質感氣息。另外為了滿足女主人對機能上的實用需求,在進門處便利用權木木皮結合黑鏡切分,設置收納功能寬裕的衣帽櫃,而主臥房則隔起了專屬空間做為化妝室,為女主人的需求做了最完美的詮釋。

設計理念
人本為設計核心,讓人皆能在簡單的空間裡,享受最大的樂趣與紓壓。
資料來源:漂亮家居雜誌第 164 期