提醒你
本網站隱私權政策已於2018年7月20日更新,請至閱覽並同意新版隱私權政策,若您未勾選同意而繼續使用本網站,則視為您已同意新版隱私權政策。

格局對了,舒適生活油然而生!擅長改造格局,探討空間、人與環境之間關係的將作空間設計總監張成一,專研於室內設計規劃的機能與實用性,同時也注重外部環境所創造的空間心理學效果。
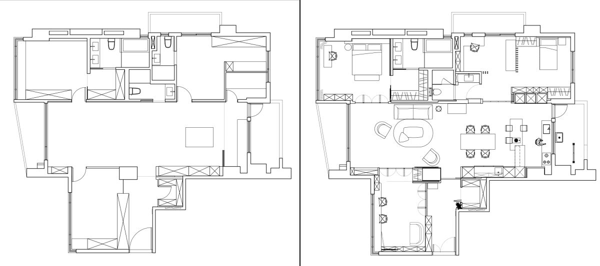
張總監曾說過,過去多數尋找他們規劃空間的屋主,都有著相似的問題:「覺得空間不夠放鬆、格局不符合需求。」這回,43 坪住宅的女主人再度委託合作多次的張總監,希望改造後的生活,能幫助老公下班後全然放鬆身心。此次總監從屋主的收藏、屋況戶外優勢汲取靈感,揉合中式格局想法,層層放大本案絕佳自然條件優勢。
屋主夫婦對於美學有相當的感受力,且男主人本身非常喜愛明式的傢俱,希望能將古董收藏融入現代風設計。因此整室以簡約的色調為基底襯托古董家具,精準擺放屋主收藏,讓古董成為具個人風格的實用家具;茶水備餐台以減量的方式處理滑門窗花造型,整體視覺雋永卻富有現代感,傳遞出整室的設計語彙。

格局想法從明式古董家具為靈感,跳脫西方建築想法,從中式空間概念出發,打造層層進入的流暢格局,輔以自由開關的滑門,串起空間與視覺的層次。整室以新舊融合的創新設計,從家具收藏、設計語彙一路至格局觀念,共同打造出舒服和諧且獨具個人風格的生活。


空間充足的長型玄關,安排了實用穿鞋椅、充裕的收納容量,打造完整的獨立玄關。不過,從大門抵達客廳的長廊上,將書房的隔間設計改為四扇滑門組構的彈性門片,進門多了一條通往多功能的動線,也揮別長型廊道的狹隘感受。


滿足屋主放鬆的關鍵,不單僅止於注重生活機能、空間美學,對於影響身心五感的沈浸式設計,也透過引景入室的巧思實現。首先延續彈性隔間設計,將四扇旋轉門的概念應用於公領域與各臥室的分界,當臥室門片敞開,客廳旁的湖景、側邊的綠蔭美景,皆伴隨著採光自由穿梭在每個角落,充分發揮以景為題的主軸,更以客廳為中心,串起各領域的交流,層層擴張實際坪數,讓視野無限放大。


張總監認為廚房不只是廚房,僅兩人的生活透過開放式的餐廚設計整合客廳,公領域範圍無限延伸、用餐時窗外景色一覽無遺,女主人表示,增添中島吧台的規劃,也替夫妻生活增添了不少別於以往的趣味互動。

年紀漸長後,不少夫妻選擇分房睡,偶爾擁有個人隱私反而感情會更融洽。為了配合男女主人分房的習慣,首先將原有的 4 房格局改為更符合需求的 2 房+1 多功能室設計,而每間房門也以旋轉門的設計取代,敞開時,空間保持流通,即使位處不同領域做著自己的事,彷彿也在同一個空間下,能彼此照看、對話;而希望有些隱私時闔上門片,霧面的設計光影能恣意流動,仍維持空間的開闊感。


餐廚區旁旋轉滑門的後方重新改造,替平時在家時間較多的女屋主安排了完美的格局。整合公領域的衛浴設備後,另一套廁浴空間取消改造為書房領域,而進入臥室前,緊鄰的小陽台拉開視覺空間,帶進充沛好採光;進入臥室時,透過格柵打造出房內玄關概念,讓私人空間有了緩衝,書房、臥室、獨享小陽台彼此串連,成為女主人的小天地。

