提醒你
本網站隱私權政策已於2018年7月20日更新,請至閱覽並同意新版隱私權政策,若您未勾選同意而繼續使用本網站,則視為您已同意新版隱私權政策。

疫情過後,大家對於居家的設計定義已然改變——需要讓人能更長時間、舒適的在家生活,其中關乎家人互動的——客廳規劃就十分重要,本次知域設計X一己空間制作將以 2 個案例告所我們何謂舒適又體面的客廳設計。
>>體面客廳這樣創造
1. 旋轉電視牆劃分客廳和練琴區,公區視野超開闊
2. 開放式客餐廳設置 8-10 人大餐桌滿足聚會需求
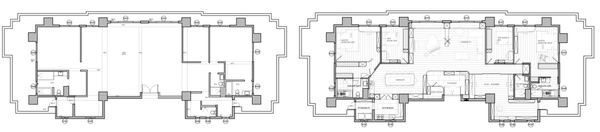
73 坪的北歐風居宅,是一家四口的未來生活、成長之處,空間融入和諧的低彩度與柔美圓弧,搭配清新的光度流淌,展現純粹療癒的生活氛圍。雙拼的空間原本是三房兩廳的格局,考慮兩夫婦與女孩們的需求調整為 4+1 房的空間,並讓公區與私領域清楚劃分。

一入玄關區,左側圓弧造型引領視野動線並結合隱藏儲藏室,而右方純白色櫃體和穿鞋椅,滿足回家和外出時的收納機能需求,上方局部鏤空設計,除了讓光線得以自由流淌,同時化解風水中的穿堂煞氣。


碩大的廳區以旋轉電視牆劃分客廳和練琴區範疇,卻依然保有整體公領域的通透性及彈性使用,兩座落地窗採用拱門造型,宛如簡約優雅的畫框,將戶外美景裱匡;而客廳沙發背牆向上延伸至天花板,以圓潤的造型結合特殊塗料的質樸紋理,聚攏空間焦點成為舒適安定的包覆,並與琴區的弧形展示相互呼應。



規劃於公領域底端的餐廚區,設置一張可滿足 8-10 人用餐需求的固定式餐桌,其增設收納功能,桌上也配置插座,使用更為方便,側邊櫥櫃複合收納與展示功能並設有洗滌區,邀請親友到家中聚會,也能輕鬆準備料理和滿足餐飲時的舒適使用。

>>體面客廳這樣創造
1. 寬敞玄關營造大器迎賓印象
2. 局部深色與異材質勾勒空間細節
50 坪的混搭風空間是輕熟齡夫婦為人生下半場準備的生活空間,有著在都市叢林中少見的翠綠景色,因此知域設計X一己空間制作採用開放式客餐廳設計,並採以大開窗將日光與綠意延攬入室。
一進門開闊的玄關,整面木作的收納櫃體運用細膩的鐵件收邊,及燈光展示櫃置入如藝術空間的端景櫃設計,於賓客來訪時盡顯大器印象,當然足夠的收納空間也滿足日後的使用需求。


轉入公領域則採用灰白與木元素為主色調,利用簡潔的視覺效果,營造舒適自在的氛圍,並透過局部黑色與特殊鏡面細節如餐桌與後方展示櫃的氟酸鏡彰顯立體層次與優雅的生活態度,而壁布材質的餐邊櫃運用特殊的五金,隨時可關閉,減少雜亂感。



玄關深灰色的地板延伸至廚房,客餐廳區則使用溫潤的海島型實木地板,地坪材質界定玄關、廚房機能區與客廳、餐廳的生活空間,塑造出流暢的引導動線,也因為開放式公領域設計並減少高低落差,更是為未來的二十年老後保留更大的彈性。

