提醒你
本網站隱私權政策已於2018年7月20日更新,請至閱覽並同意新版隱私權政策,若您未勾選同意而繼續使用本網站,則視為您已同意新版隱私權政策。

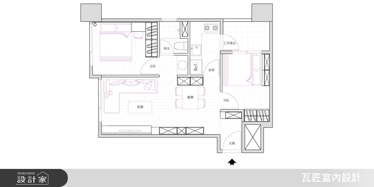
坐落於新北市淡水區的15坪小宅,坐擁兩房一廳的實用格局,為將小宅坪效完全發揮,瓦匠室內裝修工程有限公司先以色彩淡雅的北歐風為基調,再覆以全室木地板、系統櫃與暖光線燈,不僅氛圍溫煦沉穩,原本平凡的小宅,還瞬間化身超高機能的全能宅。
玄關廊道根據空間原始格局規劃一條L型動線,透過錯位的手法構築如獨立玄關般的隱私性,讓居家空間不被一眼窺探;廊道盡頭系統櫃選用頂天懸浮設計,創造輕盈感受,滿足入室後所需,空間感也能不被壓縮。再往內走,沿樑下所規劃的系統櫃引導動線,虛與實的搭配創造收納彈性,同時也修飾了天花降板處的存在感。客廳電視牆選用暖白襯底,上方再層疊一面灰調特殊漆所鋪陳的弧形,創造前後景深,最後再以暖光線燈勾邊,除了提供良好的視聽體驗,還可以說是居家空間裡的絕美端景。考量空間尺度,餐廳以開放式設計呈現,同時將餐邊櫃整合電器櫃機能,不僅提升用餐體驗,還避免了電線落地的窘境。
主臥室跳脫公領域色彩規劃,在暖白的基礎上,點綴甜美的粉色調,當床頭上方線燈灑落,寢臥氛圍顯得更舒緩。收納部分沿樑下規劃,頂天立地的設計鋪陳平整立面,美感與實用機能完美平衡。
衛浴空間將洗手台外推,巧以分流使用動線,就算只有一間衛浴,也能從容使用,不用彼此等待,使用體驗更提升。









