提醒你
本網站隱私權政策已於2018年7月20日更新,請至閱覽並同意新版隱私權政策,若您未勾選同意而繼續使用本網站,則視為您已同意新版隱私權政策。

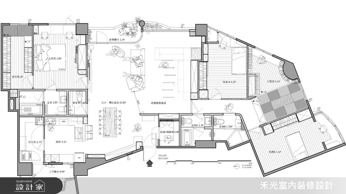
本案位處三角窗公寓大樓,在格局上遇到扇形轉折,導致空間零碎不方正。如何將空間調整為合適一家四口的狀態,是本次禾光室內裝修設計團隊的改造目標。藉由格局的重新梳理,以明亮的日式木質調性翻新中古屋,讓屋主與孩子有互相陪伴又能獨立的高品質親子生活。
快上 YouTube 訂閱「設計家」,觀賞更多精彩設計吧!
扇形格局如何破解?首先,設計師將扇形外側採光通風良好的區域留給了「公領域」及「臥房空間」,讓主要的生活場域明亮寬敞。接著,將扇形內側規劃給衛浴、走廊等功能性的空間。而扇形區複雜的樑柱問題,則透過包樑手法與長親房和室的配置,將不方正的格局做了整合,化解視覺壓迫與使用困難的窘境。

玄關設計以一道端景牆保有隱私,讓進門不要馬上看到起居空間。右手邊衣物間特別用機艙拉門設計,方便開關又不佔位。衣帽間內部運用洞洞板和開放層架,讓一家人的鞋子、生活用品、露營設備都妥善收納。而為了出入方便,玄關左手邊則規劃放置鑰匙小物的檯面,並向一旁延伸與收納展示櫃整合,搭配燈條和投射燈,讓一家人的收藏和照片可以陳列在這裡。


原始狹小的客廳空間,在移除一房隔間後,調整成大人小孩的遊戲運動區。運用訂製木作打造整個遊樂場,不僅可以溜滑梯,拉開書櫃下面的座椅機關,也能變成玩捉迷藏的地方。玩累了也可以像積木一樣可以折疊收納回到書櫃中,維持客廳整潔。而溜滑梯也考量未來孩子成長,在溜滑梯旁預留層架軌道,可將溜滑梯拆除成為收納櫃。

有別於先前封閉的廚房,餐廚區透過開放式的規劃,讓料理跟用餐的人有很好的互動。運用較多的白色讓空間有放大的質感,同時加入許多使用機能,包含廚櫃、吊櫃、電器櫃和洗碗機等,滿足屋主日常使用時方便順暢!

小孩房考量公平規劃接近大小的房間,房內則透過弧形天花板修飾樑柱及書桌機能靠窗規劃,化解邊角的畸零空間。同時兩房也都規劃有整面的系統收納櫃,來因應小孩成長時大量收納的需要。小孩的次衛浴設計以湯屋概念設計,同時保有一點趣味感,在材質挑選上選擇好整理清潔的防水塗料沒有溝縫,搭配水磨石點綴日式質感。


考量長輩偶爾過夜的需求,以和室的概念打造長親房。平時是屋主與小孩寫功課畫畫或是練鋼琴的地方,規劃了充足的收納櫃、窗台邊桌和電動升降桌,方便一家人不同的使用情境。



主臥房延續日式木質調性,更多了屋主喜歡的綠色自然氛圍。進門的電視櫃結合了入門的端景檯面、雙面電視牆、收納櫃以及一旁的書櫃,運用巧思設計機關整合這些功能。主衛浴採用乾式分離設計,同樣也是灰色調性,選用石紋磚讓質感更加成熟。內部的更衣室空間,在兩側運用開放式系統櫃打造充足的收納機能,並在靠窗處規劃臥榻,提供屋主整理更衣室時方便使用。

小編的最愛
設計師翻玩機關設計,除了把客廳打造成日式遊樂園,電視牆多變的機關設計也是不可思議!
