提醒你
本網站隱私權政策已於2018年7月20日更新,請至閱覽並同意新版隱私權政策,若您未勾選同意而繼續使用本網站,則視為您已同意新版隱私權政策。

隨著「新青安貸」的推行,越來越多的新手屋主進入了購屋市場。其中,售價相對親民且具備客變彈性的預售屋,也成為赤手可熱的選擇。想知道預售屋到底是什麼嗎?在客變過程中又有哪些關鍵需要留意?今天,就讓我們與明代室內裝修設計一起,深入探索「新手屋主的預售屋購買與客變須知」吧!
預售屋顧名思義就是即將興建或興建初期便已開售的建案,因此在購買時無法看到建築的實體。不過,由於預售屋的款項會隨著工程進度逐步支付,部分建商甚至推出工程期零付款的優惠,對於預算較為有限的首購族來說,負擔相對較小。此外,預售屋還存在客變的客能,讓屋主在建設階段就能進行調整,不僅讓新家更符合個人需求、喜好,還能減少裝修階段不必要的支出。不過要注意的是,並非所有預售屋都能客變,在購屋前一定要先詢問清楚!

由於看不到建築實體,屋主需承擔完工後與預期不符的風險。除了慎選建商外,提前做足功課也是至關重要的。建議在挑選預售屋之前,先了解如何閱讀平面圖。此外,購買前也務必參觀「實品屋」,實品屋不僅展示大致的樣貌與空間感,還能讓你了解衛浴、廚具品牌以及使用建材等細節,親身體驗完工後的生活情境。參觀實品屋時,建議隨身攜帶魯班尺,將尺寸數據化,這樣後續參考會更加明確。

在挑選預售屋時,也可以根據個人的生活習慣來考量房屋朝向、樓層等物理環境。例如,夜晚活動的夜貓子可以避免選擇坐西朝東或坐東朝西的房子;喜歡安靜且預算充裕的人,則可以考慮選擇頂樓戶,若是如果條件允許,也可以請專業人士協助挑選。在預算範圍內,找到最適合自己需求的房子,就對啦!

明記申請時間| 預售屋客變要趁早,避免錯過申請期限,提前準備更充足。
釐清生活需求| 分析使用者人數、習慣,確保房間數、插座與電壓合需求。
精算預算規劃| 釐清建商款項計算方式,預留備用金,避免開銷嚴重超支。



除了尋求設計師協助進行客變外,如果變動幅度不大,其實也可以自己DIY!預售屋客變通常包括格局(不含衛浴和廚房)、設備,以及管線布局等項目。在進行客變之前,可以先大致規劃家具擺設位置、預計使用的家電以及電壓需求,再結合建商提供的圖紙進行考量,這樣可以達到更精準的結果。然而,如果變動幅度較大或缺乏相關知識,最好還是聘請室內設計師協助,有專業的幫忙,自然是事半功倍!


Part 1.環境資料
►基地位置圖: 提供建案的具體位置、棟距及與馬路的距離,有助於了解周邊環境。
►一樓平面圖:大樓法規會根據住商混和、純住宅形式有所不同,一樓平面圖可以協助釐清。
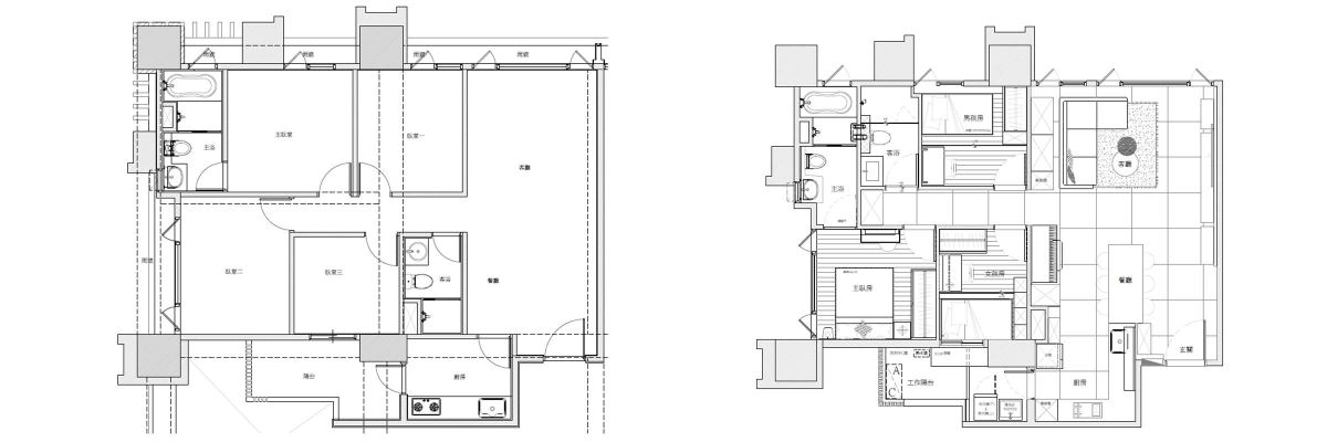
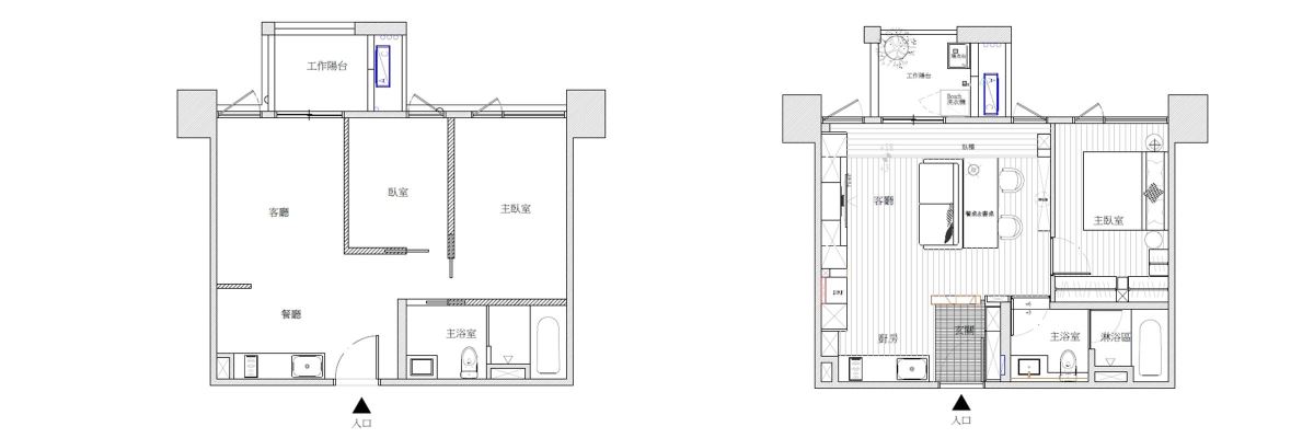
►客變戶平面圖: 顯示原有的空間格局設計,方便日後進行調整與規劃。
►樓上與樓下兩層平面圖:可確認是否位於機房、中繼水箱等設施上、下,若是無圖,也可以在合約裡著明相關資訊,以免影響日後居住的舒適度。
►外部景觀空拍圖:可確認從窗戶看出去的景色,但是否提供依建商而定,若有提供資料會更全面。
Part 2.空間資料
►水電弱電圖、給水排水計畫圖、排氣計畫圖、消防計劃圖:管線配置會影響插座、冷氣、洗手台、排氣等設施的擺放,若能提供將有利於後續裝修安排。
►樑柱結構圖:能顯示樑柱位置及屋高,提前構想化解方法,避免樑柱明顯或空間感壓迫的疑慮。
►門窗尺寸圖:門窗屬建築外觀無法調整,但能預先衡量採光與通風效果。
Part 3.裝修需求資料
客變階段雖然尚未開始裝修,但若能提供更齊全的資料,設計師也能更精確地掌握屋主需求,建議提前列出居住人數、預算、偏好建材與設備相關資訊。


一般來說退掉越多建商標配,後續裝修費越高。若是預算有限,可以選擇保留標配的衛浴設備與廚具,但機能的部分就會相對基礎,這個部分就需要大家與設計師一同討論或自行權衡囉。

