提醒你
本網站隱私權政策已於2018年7月20日更新,請至閱覽並同意新版隱私權政策,若您未勾選同意而繼續使用本網站,則視為您已同意新版隱私權政策。
你嚮往的退休生活怎麼過?長期旅居美國的屋主,購入新屋返台後作為退休宅,喜愛宴客品酒,希望能擁有寬敞舒適的公領域,與親友歡聚,空間簡潔但有海量收納機能,能延續美式風的住宅。委託口碑好評的好厝元創黃元恩設計師,將空間放大、氛圍營造,實現屋主夢想中的美式風退休好宅!
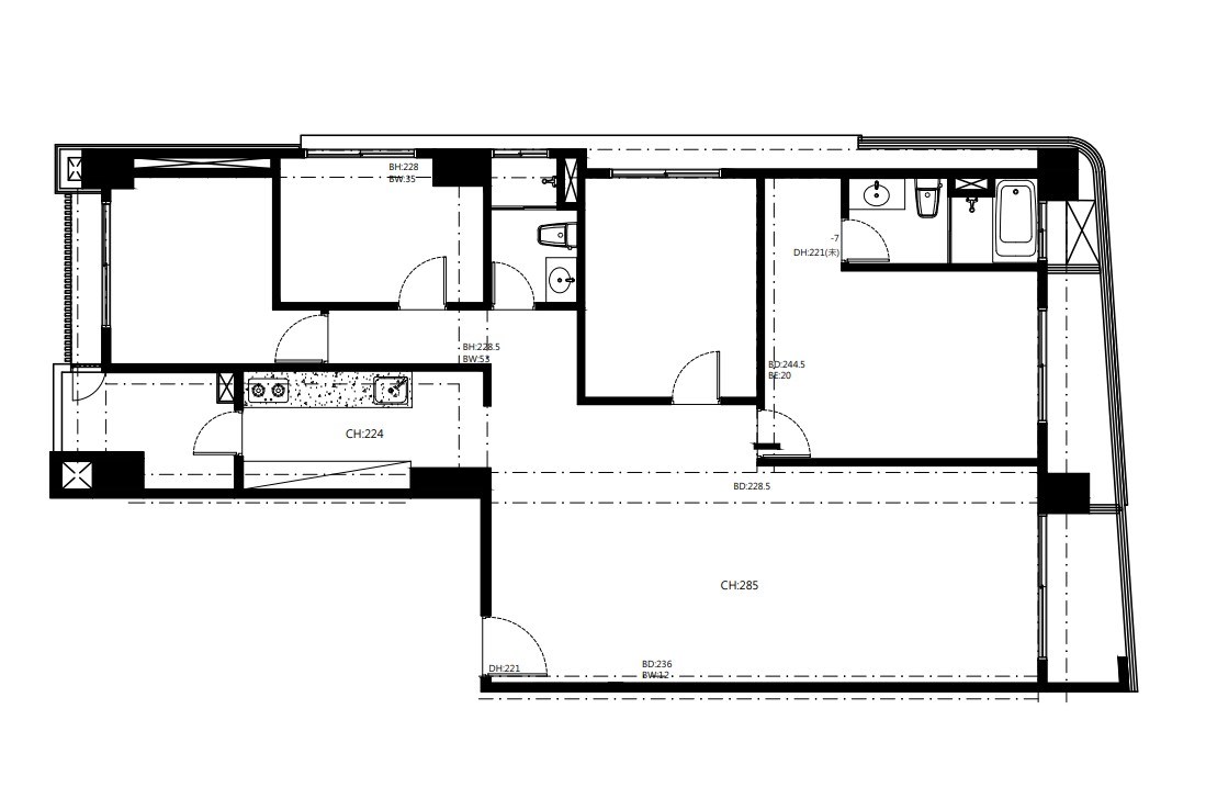
原始屋況 :
建商原四房格局,公領域較擁擠,公共區域也不夠寬敞大器,天花大樑貫穿,產生壓迫感。


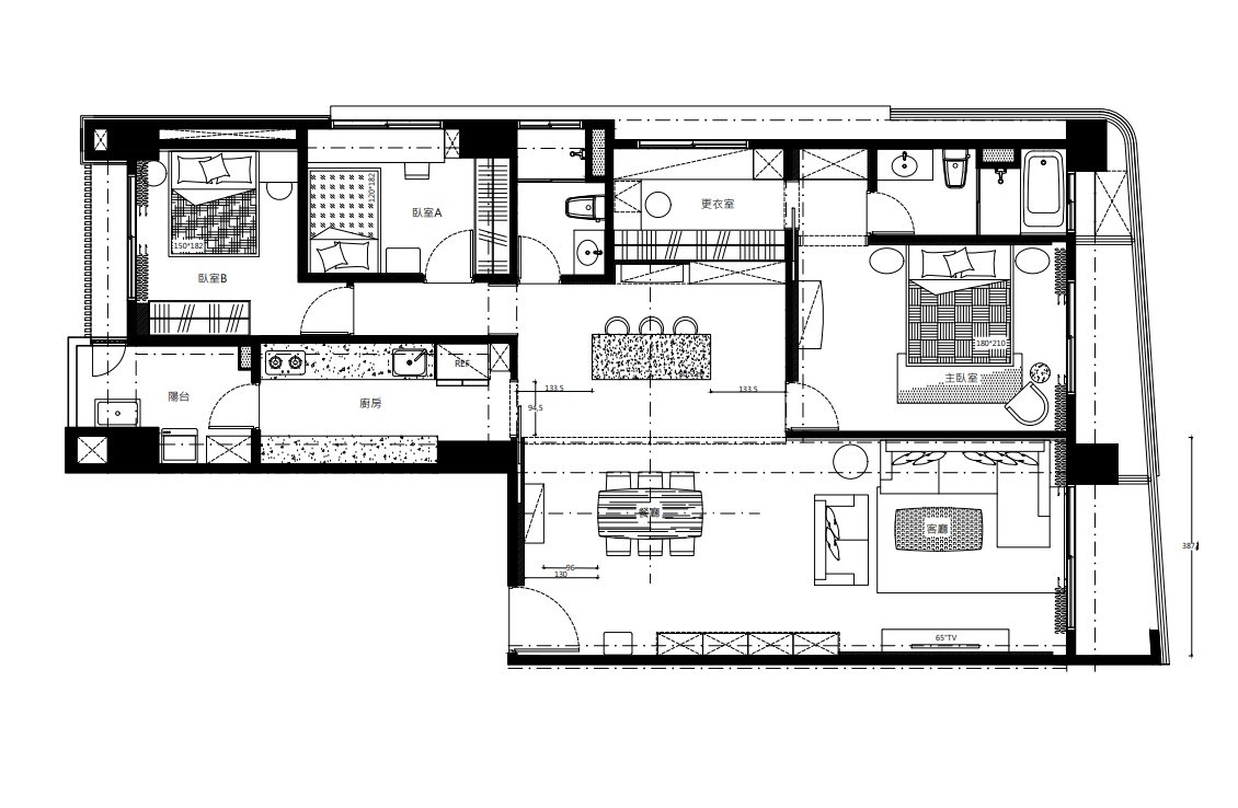
平面圖概念 :
原四房的其中一房位於廚房旁,影響廊道採光,考量僅2人居住,拆除1房,一部份做餐廳中島,滿足宴客需求,另一邊為主臥更衣室,釋放空間,實現中島、寬敞公領域與女主人更衣室的夢想。


色彩軟裝 :
中性、彩度低的色彩圍塑,視覺柔和落差小,減少空間分割感,獨立玄關椅與電視櫃串聯,由大門到前陽台,強化縱深,創造大宅應有的大器氣勢。沙發窗簾棉麻質感,貼近自然,局部留白視覺聚焦於窗外景致。


虛化樑柱 :
大樑橫貫產生巨大壓迫感,格狀切割手法,轉化視覺虛化樑柱,巧妙新增客餐廳間的大樑,隱藏冷氣設備,劃分場域,交錯的大樑製造層次,美觀與機能兼備。


靈活中島 :
增設中島與餐桌,構築絕佳宴客場域,島枱後方雙面大量收納櫃,補足廚房收納,中島石紋檯面低奢質感,蘊藏餐具收納,展示層架牆面,突顯屋主好品味。


氛圍到位 :
餐廳大樑下方與私領域廊道,型塑弧形門拱,線條簡潔的復古金時尚吊燈,營造美式氛圍,廚房以噴砂玻璃拉門,延伸空間感。細膩堆疊歐美建築的經典語彙,傳遞異國情調。


夢想更衣室 :
主臥床頭牆對稱設計,烘托美式安穩感,新增步入式更衣室,實現女主人夢想,保留採光訂製櫃體、化妝台與污衣籃,優化使用動線。


複合式客房 :
臥房色調呼應公領域,整體感一致,書房整合次臥,達到閱讀書房與臨時客房兩用功能,配置充裕櫃體,度過悠閒時光。

