提醒你
本网站隐私权政策已于2018年7月20日更新,请至阅览并同意新版隐私权政策,若您未勾选同意而继续使用本网站,则视为您已同意新版隐私权政策。
会员登入
网友 / 设计师注册
马上联络设计师,我有装修需求!
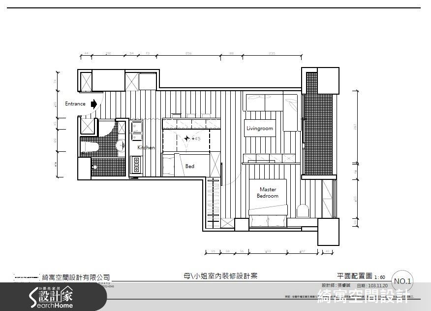
屋主是一对新婚夫妻,在此二手房内,原先格局配置不佳、采光不好,连厨房都显得狭窄不敷使用,寻觅许多设计公司之后,邂逅了绮寓空间设计,在设计师巧思下,将让原本恼人的居家空间,变身成为幸福满点的美宅空间。【细致兼具变化,演绎现代风层次】以落地窗带入明亮自然光,引进户外的城市美景与绿意,空间以现代风作为主调,电视背墙选用文化石,让白色增添了变化性,创造雅致的品味,以洁白壁色配上黑色建材,铺陈生活中的浪漫情怀!【更动厨房位置,重塑宽敞视野】厨房原本安排在玄关处,但由于厨具规格相当简陋,且不符合屋主的居住习惯。针对这点,设计师重新调整厨房位置,移至卫浴空间与和室之间,让女主人能拥有一个宽敞的厨房区,烹调出更多美味的菜肴。【格局调整,重塑通透空间感】在格局重新调整后,设计师规划了和室,以移门与遮帘搭配餐桌吧台,使空间机能大跃进,打造出私密且独立的休憩空间,作为客房、小孩房都合用,当移门拉开时,通透的空间感让视觉有放大效果,再结合吧台,就是舒适的用餐空间!【白色消弭压迫,挹注明亮感】住卧以白色为主,消弭小空间的压迫感,床头背墙选用进口墙纸点缀,烘托优雅与沉静,在重新规划下,重新打造出空间明亮感,高机能性的餐厨设计,以及更加灵活多变的空间配置,让屋主夫妻在这个现代宅里,谱出更多美好回忆。
在都市喧嚣中,与生活展开深度对话!158平米现代风新成屋以材质与光线书写诗意留白
机能床架助攻,开放客厅也能变出客房
错落凹凸设计,简约宅充满视觉趣味
水蓝色与原木调和!中古屋变身温馨新婚宅
晦暗老工厂奇迹蜕变,化身132平透白新婚宅
坐拥百万夜景!30年老屋化身纯白时尚宅
顺应采光扩增收纳,打造muji文青宅
45年老屋焕颜,打造年轻夫妻的光感新婚宅
小户型坐拥大格局,打造46平纯白新婚宅
家的素颜保养之道,就在53平新婚居宅
2021 TINTA金邸奖 延长征件至3/31,年度设计大奖等你来角逐!
推荐活动│烟火计划第三季-「春日人家」,邀你用设计定义家的温度
【征件延长至 3 月 31 日】2020 TINTA 金邸奖热烈报名中 ! 把握最后机会竞逐年度赛事