马上联络设计师,我有装修需求!

发讯息 拨电话

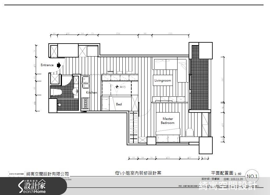
绮寓_13 图片搜寻结果

绮寓_13

50平米 ‧ 平层 ‧ 二居室 ‧ 现代风

<< 1>> 每页16笔,共 15 笔资料
Loading