66平方米的房子能拥有2间方正的双人房,以及各自独立的客厅与餐厅,又不会给人狭窄的感觉,反而营造出悠哉又轻快的美式休闲氛围,实在不得不令人佩服莳筑设计总监朱皇莳的功力。

原本格局出现动线不合理的状态,空间的分配也不完善,朱总监更改了浴室入口,也把淋浴间挪了位置,加上公共领域采用水蓝色,缓解了狭隘感,也呈现利落又清爽氛围,蜕变成为屋主夫妻的”天空之城”。至于当中有什么巧思?一起与小编来看看吧!

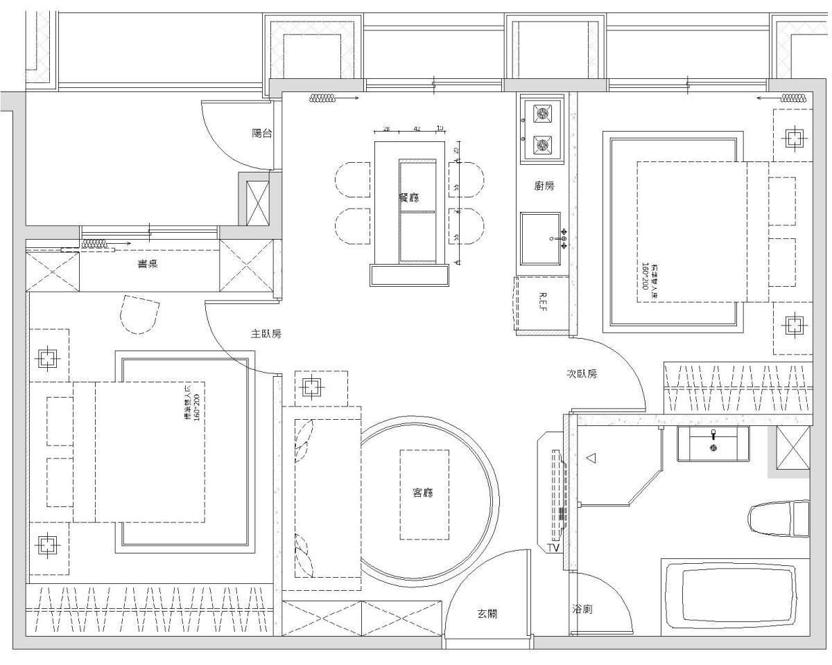
平面图片提供 / 莳筑设计
【延伸电视墙,扩大客厅视觉效果】
由于电视墙的宽度不长,但设计师藉由在左右两旁分别打造浴室及次卧的隐藏门,顺势延伸墙面,达到扩大客厅空间的视觉效果。其次,进门的鞋柜采顶天立地规划,并在靠门处刻意挖空,除便于放钥匙、信件等小物,也纾缓大型柜体带来的视觉压力。
另外值得一提的是,天花板的线板往上延伸,也粉刷成水蓝色,利用颜色带着视觉往上,有拉长屋子高度的效果,更加大了客厅的空间感。

【无形隔断,巧妙界定客餐厅场域】
餐厨空间及客厅采开放式设计,不过莳筑团队在冰箱旁还是以木作打造隔屏,一来可以挡住从玄关一眼望进厨房的状况,二来与餐桌旁的半高端景柜呼应,作为无形的隔断。

而且为了增加收纳机能,朱总监绞尽脑汁,除了餐桌旁的端景柜,连餐桌下都设计了收纳,取代传统式的餐橱柜,让小空间也能有足够的机能。

【巧用窗边空间,打造多用梳妆台】
私密空间的主卧室采取温暖的豆沙色调,主墙也以若隐若现的墙纸装饰,强调柔和的氛围。其次,随着主卧门往玄关方向挪动约60厘米,多出的宽度刚好可以打造收纳柜及梳妆台;并且巧妙的将化妆镜藏在靠床头侧的收纳柜后,有需要时再拉出即可。

另一侧则以整排的衣柜做为墙面,并善用线板打造雅致的柜面,成功虚化柜体的压力,进而形成典雅的味道。

【柜体贴镜设计,纾缓空间压迫感】
原本的浴室及次卧共享入口,朱总监为此先更改了浴室门,也把淋浴房挪了位置,就顺理成章将次卧门转个弯,空间因此变得完整也更大。
不过,一入口就是衣柜的侧边柜面,不免让人感到压迫。对此,莳筑团队因地制宜,加以利用安装及柜体同高的穿衣镜,藉由反射影像消除压迫感,也有扩容的视觉效果。

入住前,房屋格局呈现均分成直条的三等分,虽然没有畸零空间,但横向的分割导致动线不合理;调整后的环境,每室既完整又不会太狭隘,加上以水蓝色当作主色调,让人感觉利落又清爽,并在自然光的洗礼下,成就了年轻夫妻的梦幻小屋。