旅居外地的家人要带着小孩回家乡了!全家期待这个团圆的日子不是去品尝大餐,而是连忙寻找设计师规画空间,准备让回乡度假的游子能有个舒适的”窝”;并希望40平方米的小宅能规划两室空间,还要有客厅、阅读空间及厨房等。

于是,莳筑设计团队运用1 + 1室的巧思,规划复合式的空间;比如厨房的吧台也作为电视墙使用、休憩室的阶梯也能当客厅的长椅,成功在小宅里创造加倍的空间效益,任务圆满成功。

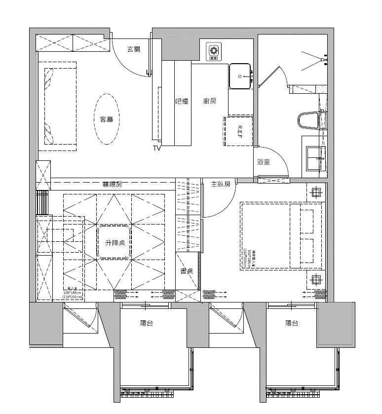
平面图片提供 / 莳筑设计
【折迭间+隐藏床,一室多用途】
因为从毛胚屋开始规画,节省拆除实墙的时间及金钱。紧邻客厅的空间以折迭门区隔,横式床铺其实隐藏在柜体里。

而茶几可以伸缩上下,机能齐全的双人房在五分钟内就能变身明亮的书房兼交谊厅。从客厅过渡至房间的墙面以开放展示柜作为缓冲,七扇折迭门的收纳形成一道假门;若没有精准计算,做不出这么刚刚好的排列。

【架高地板收纳,书房轻松坐卧】
小宅的空间要发挥大坪效,一物多用是不二法门。以整墙的收纳柜作为隔断墙就节省许多空间,在靠窗处做出小书房角落,高40厘米的架高地板下除了茶几外,都是收纳空间。书桌下并不做满,而是留出空间当椅子用,置物层板还做出间接光源当辅助桌灯使用。

【阶梯体贴设计,团圆不怕拥挤】
从客厅至多元化休憩室特意规划阶梯,是为了长辈的安全考虑;其中隐藏光源,既营造氛围,又兼夜灯功能。尤其当来访的亲友众多时,阶梯也能作为长椅使用,一家人在小空间里可以尽情坐卧,畅谈久别重逢的点点滴滴回忆。

【吧台兼作电视墙,走道不浪费】
一进门就是客厅,设计师利用厨房的半高吧台当隔断也兼电视墙,走道的宽度刚好增加沙发及电视的距离,又是一地多用的妙招。其次,室内改成U字型,电视墙背后就是料理区,收纳厨房家电;客厅与厨房共享双面柜,复杂的管线收得干干净净。

【淋浴间双面柜,好整齐好收纳】
由于屋主不喜欢原本浴室里的层架,但又需要收纳,于是加厚了淋浴间墙壁的厚度,打造双面柜兼隔断墙,再挖空做出收纳空间;上层的喷砂玻璃格摆放沐浴用品,下方的两个格子,则方便使用马桶时拿取。至于整排的镜柜既有放大空间的视觉效果,且整齐又有时尚感。

仅40平方米居宅借着提高空间的使用效率,进而创造另一个弹性空间,不仅完成屋主期待的完整格局,更赋予了美式风格,让小户型除了摆脱拥挤的命运,并拥有舒适的生活氛围!