很多老房子都显得阴阴暗暗,空气及光线像是凝结住了停留,没有流动。有的设计师选择大刀阔斧更动格局,有的设计师则是加开或加大窗户;而经验老道的则是稍微调整格局、重新设定生活动线,即能让老屋回春。

比如这间长型老屋拥有三面采光,还有前后大阳台,却因为规划不良,就算在大白天也要点灯。但透过莳筑设计的总监朱皇莳的巧思,老屋不仅变得明亮,也显得年轻,且空间并更容纳十几人,成了亲友聚会的招待所。

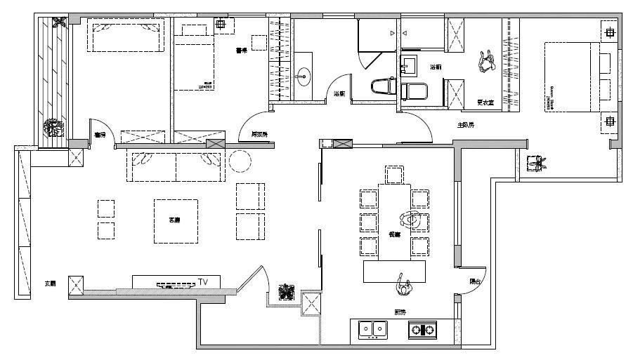
平面图片提供 / 莳筑设计
【波浪天花板,解除压迫感有亮点】
波浪布纹般的天花板虽然只有一小角,但已经让整个空间舞动了起来!会做这样的设计,其实是因为右侧天花板上有梁,不得不包覆,却又不想让空间因此受到压迫,于是以波浪取代平板,反而成为亮点。

至于电视墙,则采用整块石材切割再拼贴而成,因为纹理系出同源,反而比用一整块石材来得灵活轻盈;左右两边以茶镜装饰,既可以放大视觉空间,增加光线反射,左边的一扇同时隐藏约3平方米的储藏室入口,减轻视觉杂乱感。

【客餐厅供三代同堂,旧门添巧思】
客厅连结的餐厨空间,原本是小房间加独立厨房,合并后以对开式的大拉门打造区隔,拉门连结的是具穿透性茶玻,增加家人互动机会。推拉门一开,客餐厅连成一片,三代同堂二十人一起聚会都没问题。

餐厅的八人大餐桌则紧靠中岛,这是女主人展现烘焙手艺的秀场。餐桌另一侧的茶玻原是旧房门,保留开口换上茶玻,一来省预算,二来增加采光,三者保持家人互动,中间刻意规划木质平台,保护玻璃,也能成为展示空间。

【阳台分两半做端景,日夜都迷人】
对比改造前的客厅,白天还需要开灯,新的客厅空间显得明亮许多,因为阳台的落地门拆除后分为两部分;一部分供客厅使用,并制作半高的鞋柜,再斜切打造出穿鞋椅,另一半则以玻璃隔开,摆放盆栽营造端景感觉,成为书房的阳台。

BEFORE
特别的是,阳台与客厅之间,规划了超宽的门框,藉此隐藏柱子及电视墙的机柜,并挑选的大型壁灯成为亮眼装饰;每逢夜幕低垂时,整个空间即弥漫浪漫气氛。

AFTER
【主卧享受每日晨光,收纳机能强】
主卧及客厅一样打造门框,目的要把一半的后阳台纳入范围内;当屋主靠在舒服的绷布床头板时,即能惬意的享受每天晨光。

位于床尾处的小房间则规划成更衣室,收纳机能强大,同时把原本的主卧卫浴开口隐藏在衣柜中间,墙面并贴上镜子,制造出大更衣空间的视觉效果。

对比改造前后,光是走廊的亮度就天差地远;而且原本看似要大兴土木的改造,设计师巧妙的透过几个重点调整,即摆老屋的陈旧感脱,整体空间也显得大器许多。