站在本案的室内,实在很难相信它是超过30年的老屋!有着明亮的自然光、宽广的公共空间,而且看不到大型储藏柜,整个视觉环境在利落中散发摩登感,满足了业主居家兼工作空间的需求。

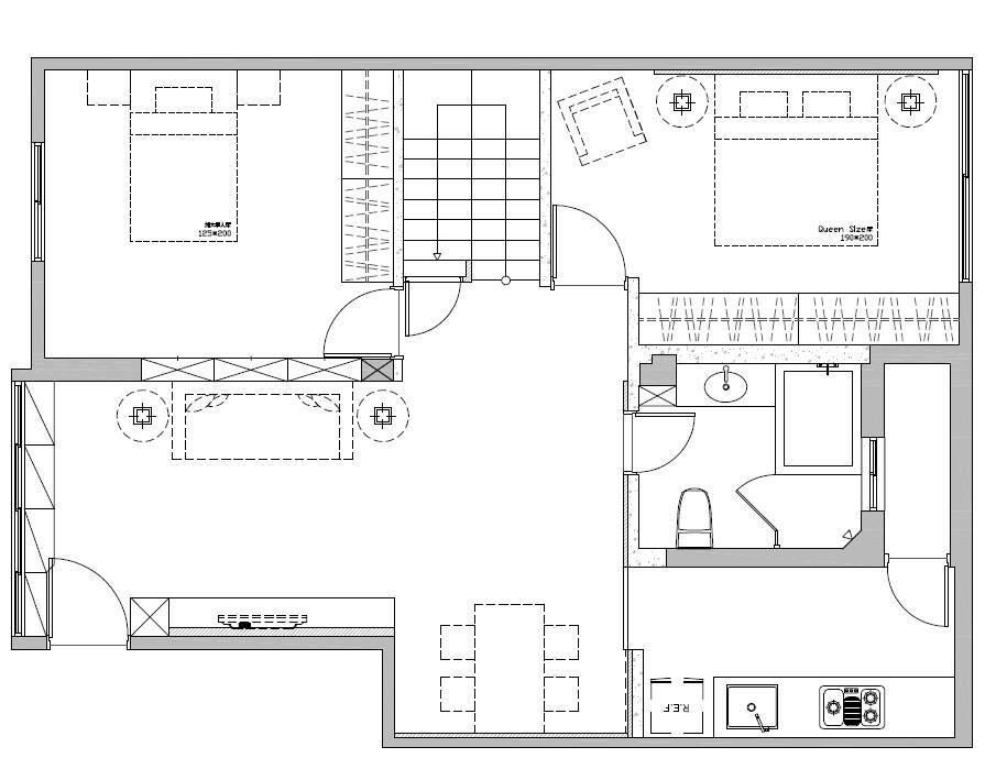
当中,除了进行水电管线、窗户及门的重新装置,并藉由拆除小房间及调整楼梯位置,达到扩容及增加收纳等作用;而且客厅及餐厅结合成大空间,无论招待访客或亲友,都绰绰有余。

1楼平面图片提供 / 莳筑设计

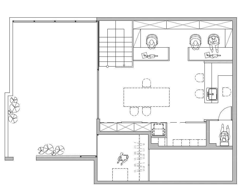
2楼平面图片提供 / 莳筑设计
【加大窗户,迎入充沛自然光】
拆除原有的落地铝门窗,调整客厅的窗户尺寸,迎入令人称羡的满满自然光;同时把楼梯更改位置到房屋中间,自然光及空气也顺着梯间流通到楼下,带来明亮(左图)。
房门也顺势在改造时拉高,配合拆除装潢的天花板,有拉长房屋景深的视觉效果。客厅电视主墙采用马来漆,有助于柔和光线;至于靠窗侧的悬空收纳柜其实是玄关鞋柜(右图)。

【运用壁面,规划大容量收纳】
主卧室床尾的衣柜,以浅紫杉木配合染黑橡木打造腰带,还饰以反光的黑镜,既透露出时尚的闪亮质感,又能减轻柜体压力;床头也采取同样双木色设计,简单质朴并化解单调(左图)。
与主卧一样简单设计的小孩房,利用与客厅相邻的墙面规划满墙的开放式收纳,深度约有45厘米,且搁板可以自由调整,便于配合小孩成长需求。床头灯则以多个复古灯罩串连,勾勒出不同的趣味(右图)。

【细节设计,客餐厅漂亮有型】
电视墙下方的电视柜刻意往前伸出20厘米,无形的空间界定线刚好与餐桌同在一条在线,无形中为餐厅多争取20厘米的空间。
呼应带有科幻感的定制银色餐椅,墙上挂着莳筑团队手工绘制的大幅油画作品,并利用侧墙的茶镜装饰,反射出不同光影;再搭配梧桐风化木的厨房推拉门,达到柔化科幻主调的作用,注入些许温暖及质朴。

【连结户外,工作室明亮舒适】
2楼工作室规划大片落地窗,引进充沛的自然光线;室内则以木作为主,同时铺设木地板,并一路延伸到阳台,并以南方松打造隔篱,方便主人种花或从事户外活动(左图)。
除此之外,工作室也与楼下小孩房采取类似的设计,利用梁的宽度规划整片墙的收纳展示空间,一样可以自由调整的层板;而浅紫杉木及染黑橡木的双木色设计,又呼应了主卧的设计(右图)。

【马赛克浴室,氛围好疗愈】
工作室的卫生间相当小巧;设计师利用复古的小马赛克砖拼贴出黑白几何图案,另在天花板开出天窗,当自然光洒落,即营造飘散疗愈氛围的空间。此外,还运用墙面的厚度,挖空打造收纳空间,增加使用机能性。

屋主当初买下这户老房子,就希望能工作及家庭兼顾;但屋龄遍大需透过装修加以调整;莳筑团队发挥巧思,藉由空间重整赋予老旧居宅全新面貌,不仅明亮舒适,更满足屋主期待的居家机能。