
设计师前言
在这476㎡的别墅里,空间被划分为四层,每一层在有限的空间里很好地规划布局。负一层和阁楼打造成休闲娱乐空间;一楼规划为客餐厨空间,开放简洁的格局让光线和动线自由流畅;二楼承载了主人休息空间,由主卧套房(卧室、衣帽间、卫生间)、两个客房、公共卫生间组成;三楼则是女儿的闺房,配备她专属的独立衣帽间、卫生间、书房。
整体空间以白色为基调,香槟金与雾霾蓝的加入,利落地界定了现代轻奢的气质,优雅与奢调共存。
一楼空间

无限连纹的瓷白色瓷砖简述低调的雅致,与黑金相间配色的玄关桌相得益彰,自此入门玄关处自成端景。

现代轻奢是本案的主体呈现,以白为基础色感,香槟金饰条和雾霾蓝墙面线条作为轻奢的点缀。极为抢眼的是吊顶设计,巧妙利用不同区域的块面空间,香槟金的光泽与灯光汇在回字形吊顶里汇聚成灵动的质感。

沙发的休闲区是一大亮点,深受屋主一家喜欢,一人、一景、一休闲椅,彷如随时在假日休闲。


优选棕色转角皮沙发,深蓝色矮凳与灰蓝地毯,奠定了现代的轻奢空间色调。


壁灯、绿植、复古小钟给空间增添趣意,营造温馨舒适的空间氛围。

我们极尽所能地把一楼空间尽最大的可能打开,营造出一个通透而且层次感强的大空间。

打掉原有的储藏间,改为餐厅区,换来更加开放的格局,上菜就在转身一瞬间,动线更顺畅。

厨房打掉右侧墙体,并向右边拓展延伸,形成一个超大的U型厨房,洗切炒顺手且流畅。
厨房门原本开在右边墙,刚好正对卫生间很不便,改为面向餐厅后,更好地串联餐厨动线。

餐厅一侧的左右两个承重柱既然无法拆除,不如巧借空间,将吧台的功能置于此。

从这望向一楼入门处,隐约可窥见玄关过道里定制的飘窗矮柜,坐在上面换鞋一气呵成,同时增加入户的仪式感。


楼梯位置依旧沿用原本区域,但原本开发商建的楼梯窄且陡,改造完后的楼平缓好走,并且感应灯带的加持让上下楼更有仪式感。
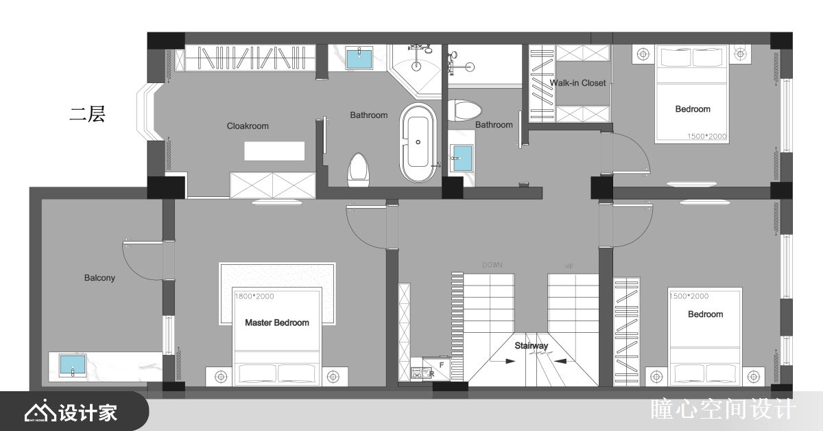
二楼空间


设计赋予二楼楼梯间新的生命,原本鸡肋空间变身为休闲吧台区,后期再加个小冰箱,在这小酌一杯也是极好。

主卧没有繁复的造型和线条,硬包床头背景墙间隔的装饰了香槟金线条,温润的实木地板给空间增添暖意。
三楼空间

女儿房床头背景墙选用优雅、温暖气质的米黄色,能给人无负担、极为柔和的视觉感受。

床头的硬包材质绘制了一幅绿植花卉图,配上与优雅的线条,给卧室增色不少。


功能分区合理的衣帽间足够收纳女儿的全部衣物以及包包,窗前对镜梳妆亦是极好。

让人看一眼就沦陷的超大卫生间,这才是别墅卧室的该有配置,钻石型按摩浴缸一侧墙体安装了电视,以后一边泡澡,一边观影亦是人生一大乐趣。


大刀阔斧地拆除了原本阻隔在书房与楼梯之间的墙体,改为通透的镂空展示柜,光线可肆意穿透到楼梯间。
书房一改本案整体的轻奢范风格,选用深色家具,很好地带给人一种沉稳安心的气质。
结束语
本案于2018年设计,2019年开工直至2020年完工,恰好碰上疫情,屋主已经入住了2年依旧保养新净,设计经典耐看,属于瞳心空间设计出品中少见的现代轻奢风案子。
户型改造分析

Before的负一地下室平面图

After的负一地下室平面布置图
负一楼改造亮点:
①在不改变建筑结构安全的基础上,地下室向右挖土扩大了面积,并增设了卫生间和储藏间。
②地下室男屋主使用的多,在这里打造了休闲娱乐区、健身区、茶室,闲暇时在此可放松娱乐。

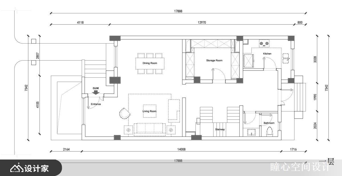
Before的一楼平面布置图

After的一楼平面布置图
一楼改造亮点:
①原本一楼厨房和餐厅的动线不流畅,中间隔了储藏间,端菜需要绕一大圈,动线不方便。储藏间改为餐厅,厨房门改面向餐厅并扩大面积,绕着餐厅的承重柱设计了小型吧台。
②原本餐厅改为客厅,客餐厨动线更流畅,进门口处做了大面积收纳柜和休闲区,回家后可在这稍作休憩。

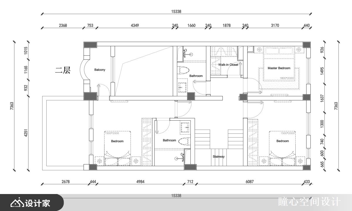
Before的二楼平面布置图

After的二楼平面布置图
二楼改造亮点:
主卧原有面积过于小,把原本挑空的客厅搭建楼板,增加了衣帽间和大浴室。

Before的三楼平面布置图

After的三楼平面布置图
三楼改造亮点:
衣帽间门封住改为从卫生间进入,好处有三:一:增大衣帽间可用空间,二:私密性更好,不用面向有人经过的楼梯,三:动线更好,洗漱完可直接进衣帽间化妆换衣。

Before的阁楼平面布置图

After的阁楼平面布置图
阁楼改造亮点:
阁楼空间在楼梯附近充分利用空间,增设了小型书房,并且储藏间和休闲区按需定制了储物柜。