
设计师前言
本案业主是幸福的一家四口,在上海佘山购入叠墅,外带一个阁楼。装修前业主其实默默关注我们一年了,因考虑到路程问题,找了松江区当地装修公司,到设计效果图阶段觉得效果不是自己想要的,最终还是选择了自己的第一感觉,兜兜转转还是找到我们。
遇到对的人就是这么一拍即合,第一版平面图一稿而过,还没出效果图十万施工费就打过来。叠墅施工相对复杂,施工一年我们往返松江区至少70-80次,所幸最后出品不负业主所托。
本案在设计规划上,二层主要为玄关+客餐厨+客卫,三层为主卧+客厅+2个多功能房+双卫,毛坯的阁楼改为为两个梦幻儿童房+三分离卫生间在,最抢眼的是好玩消防滑杆,极大满足了童心。(别忘了拉到文末,看本次叠墅的改造亮点呢!)
二楼空间

推门而入,左手边是定制到顶的玄关柜,中间开放格选了女业主钟爱的墨绿色,柜子中间腰带选了浅咖色,从玄关一直贯穿到餐厅旁吧台再到叠级楼梯,宛如金丝带。
天花顶面线性灯一直延伸到对面柜门上,错开光的设计减少沉闷感,预示着这是一个有趣好玩的家。

原本封闭的厨房被直接打开,改作开放式中西厨+餐厅的空间,呈现出别墅应有的开阔感。
餐桌左右两侧的天花板嵌入特别定制的中央空调出风口和进风口,风口自带射灯,夜晚灯光开启,新增了些不同的情趣。
岛台正上方的天花板上安装了有着有趣灵魂的"青空灯",抬眼即见云朵和微风,下厨心情变得美好。

餐厅简约而不简单,悬浮实木餐桌和黑色岩板岛台结合,将愉快用餐情绪全部纳入其中。

原本平淡无奇的餐厅墙,隐喻的祥云图案灵感来源是女业主英文名JOJO,不动声色的表达了女业主含蓄内敛的性格。


厨房采用U型设计,拆不掉的承重梁柱,被与橱柜同色的木纹板包裹,无形中化解了尴尬的存在感。

厨房墙面贴了不锈钢,不惧油污容易清洁,大单槽设计,可以洗碗也能容纳得下锅具更实用。

墙面通体全白的色调落落大方,连卫生间门也同样涂刷白色涂料,转角的线性灯恰好落在墙壁阳角处,起到收口和照明双重作用。

原始楼梯入口原本在卫生间这,在重新规划时,把吧台与叠级楼梯连接,一开灯带宛如在大学里的图书馆阶梯,爱看书的女业主喜欢在这闲坐看书。

巧借楼梯下方空间在二楼增设了马桶间,不用爬上爬下如厕,超迷你三角形台盆贴墙而装,洗手就在一瞬间。
三楼空间

整个客厅以白色+黑色内饰为主,将阳台收入在内,大面积落地开窗设计,使得整个空间更为明亮通透。

大块面积灰色沙发沉稳大气,与沙发顶上的黑色镜面,黑色百叶帘,一起奠定了空间的沉稳基调。
一整排白色书柜门特意设计成巴士移门,不仅省空间而且开关门方便。

沙发背后的整面墙书柜配上滑梯真是让人艳羡,爱看书女业主希望在家营造小图书馆既视感。

客厅仰赖于大大的落地窗,一扇窗让室内和室外有了联系,室内,窗几明净,室外,风景怡然。暖呼呼的秋日阳光穿透进来,慵懒在这里喝茶,看书,惬意感无需多言。


慵懒又肆意的阳光最是抚慰人心,就爱这向阳而生的生命力。室内外光影结合,给的极简空间带来温暖,光透过百叶帘如波浪纹一样,在木地板上荡漾开来。

电视柜一侧增加水吧台,可喝水,洗水果,底部则贴心规划了两个嵌入式小冰箱。水吧台的墙面选了透明玻璃,与二层楼梯吊灯相望,形成有趣的互动。

原本的小卧室打掉墙体,改为多功能房,与客厅相连后,整个公区形成南北通透格局。这里既是茶室亦是卧房or书房,嵌入式推拉门可开可合,隔热不断。

榻榻米设计成选用木色饰面,造型如小木屋,一侧柜体还嵌入了电视,这里可以作为学习工作区、茶室,也是给偶尔来住的长辈卧房。

窗外绿植美如画,在这里一面喝茶,一面赏景,这里马上化身为最自由舒适的所在地。坐在室内小木屋的榻榻米床上,透过无遮挡大面积的玻璃窗,绿植唾手可得,随时拥有在度假的户外休闲惬意,感知四季变化的美。

偶尔男主人还会在这里办公,不用担心打扰家人休息。

主卧大面积选用木色,与窗外绿植美景,形成温暖闲适的度假感。

床头柜和床头一体化设计,简洁利落又温润。


木色和白色交错的梳妆台+衣柜,能给人极为舒适、无负担的视觉感受。


干湿分区的的主卫,特意选用大面积白色瓷砖自带不规则小色块,时尚感拉满!

移步到三楼的休闲楼梯间,公卫选用了木色的幽灵门,时尚又省空间。

为减少空间笨重感,楼梯选用悬浮钢板,涂刷明媚而张扬的克莱因蓝,三楼阁楼儿童房与楼下空间形成一个明显的分层设计。

巧借空间在这里安排了女主人弹奏的钢琴,儿子喜爱的架子鼓,楼梯下的木色台阶是观众最佳“座位”。

注意到天花板上这个有趣的千层镜了吗?
其实是一个平面灯,营造千层感,起到往上提高空间开阔的效果。
平时开灯是普通白色自然光,想要营造party氛围,可把光调成五颜六色,十分酷炫。

钢琴区设计了小木屋造型,开放格形似烟囱,用来收纳琴谱和书籍再好不过。

酷酷的架子鼓与黑色气质很搭,四条线性灯的加持,有了深邃时光交错感。

楼梯对面的蓝色洞洞板,轻拉白色门把手,竟然是家政柜,里面整齐收纳家里清洁工具,白色门把手可随意穿插,挂物品也适用。

纵横交叉的扶手,张力十足,又起到安全防范作用。
阁楼空间

5岁的女儿正是充满公主梦的年纪,经特别定制的成品梦幻树屋小床是她的指定床,在家就能实现滑滑梯的自由。

女儿房层高足有3米多高,顶面安排了童趣十足的彩色气球灯,梦幻公主房就此诞生了。

儿子房的层高相对女儿房矮,但是也不压抑,除了选温和不刺眼的软膜灯,还特意选用了交错的线条灯,酷炫和科技感更符合男孩气质。

雾霾蓝色定制柜与灰白相间的木屋床,一起打造如蓝天白云般轻盈的空间。

木屋造型的窗前恰到好处定制了一个书桌,写作业累了,可随时抬眼看到远处佘山美景,对保护孩童视力真是绝佳利器。

台盆背面是不规则斜面空间,干脆全部做镜子,起到提升空间开阔感。

淋浴区选用黄色砖,活泼跳跃的色彩丰富了空间。玻璃砖的加持带来光影,无窗淋浴间也亮堂。
楼梯

透明玻璃扶手与透明玻璃吊灯,增加了楼梯的通透感和质感,吊灯顶部的石膏板定制的祥云图案与餐厅墙面的祥云形成互相呼应。

在叠墅里安装一个消防滑杆真的建议一户一个,因为真的太太太好玩了!!!
提前预留滑杆洞口,不锈钢做框架,小空间有局限,我们干脆舍弃传统栏杆,直接铺木地板。
同时软膜灯和天际灯散发出温润柔和的光源交汇在此,尽可能减少对孩子眼睛的伤害。



想要从阁楼去到二层餐厅吃饭,只需揭开木地板,套上防护绳,抓住滑杆5秒速达。
户型改造分析

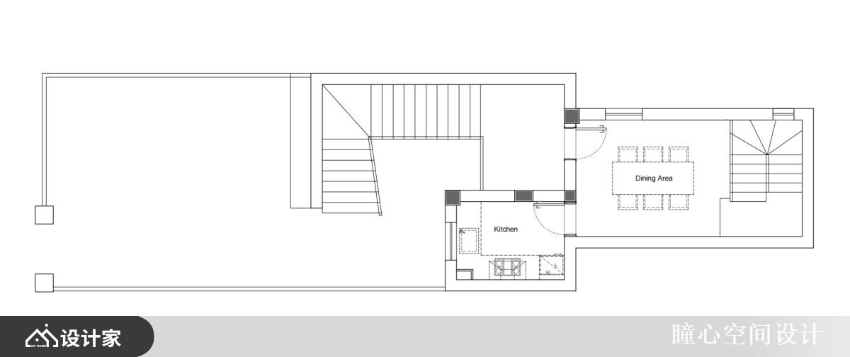
二楼Before的平面图

二楼After的平面图
设计改造后亮点:
①原有户型无玄关缓冲,改造完后增设了玄关休憩,到顶大鞋柜很好容纳全家鞋袜需求。
②厨房原本偏于一隅很狭隘,干脆与餐厅打通,形成超大餐厨一体空间。
③考虑到二层无卫生间不方便,调转楼梯方向,利用楼梯下方增设小卫生间。

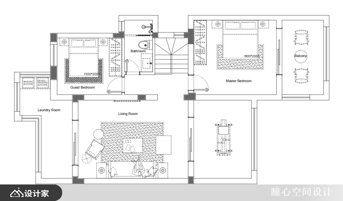
三楼Before的平面图

三楼After的平面图
设计改造后亮点:
原本两房一卫+客厅,被改造成超大客厅+可开可合的多功能房间+主卧大套间+楼梯小休闲间,储物扩大了两倍,而且两个阳台纳入室内得到充分利用。

阁楼Before的平面图

阁楼After的平面图
设计改造后亮点:
①阁楼原本是毛坯,最矮处只有10cm,原本楼梯位置开在最高处实在是浪费,干脆只保留一个口做了消防滑杆,把上下楼梯开在相对低矮侧边,不影响通行而且预留高出更好来布局阁楼房间。
②阁楼虽然层高高低不同,干脆利用房屋情况设计了两个充满梦幻色彩的书屋儿童房+三分离设计卫生间,低矮处做收纳柜,高处摆放床,一切刚刚好。
结束语
本案叠墅原本每个空间相对封闭,在设计规划时,我们做了空间大调整,拥有独栋别墅既视感,使得动线和家居氛围感更强。在新家,大人和小孩都能妥善的被安放,重构的空间带来全新舒适的生活方式,给予居住者一种更安定的力量。