提醒你
本网站隐私权政策已于2018年7月20日更新,请至阅览并同意新版
隐私权政策
,若您未勾选同意而继续使用本网站,则视为您已同意新版隐私权政策。
我同意
繁体版
TINTA金邸奖
Search
找文章
找设计师
找图片
找视频
close
热门关键词/
MyHome设计家
找设计师
找图片
找文章
找视频
登入 / 注册
会员登入
网友 / 设计师注册
如何在设计家刊登作品?
十分之一_02 图片搜寻结果
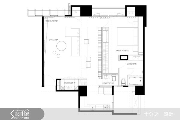
十分之一_02
99平米 ‧ 平层 ‧ 一居室 ‧ 现代风
<<
1
>>
每页16笔,共 9 笔资料
Loading