筑青_14 图片搜寻结果

筑青_14

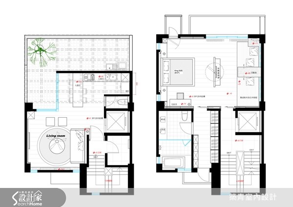
198平米 ‧ 别墅 ‧ 三居室 ‧ 田园风

<< 1>> 每页16笔,共 16 笔资料
Loading