繁体版
TINTA金邸奖
Search
找文章
找设计师
找图片
找视频
close
热门关键词/
MyHome设计家
找设计师
找图片
找文章
找视频
登入 / 注册
会员登入
网友 / 设计师注册
如何在设计家刊登作品?
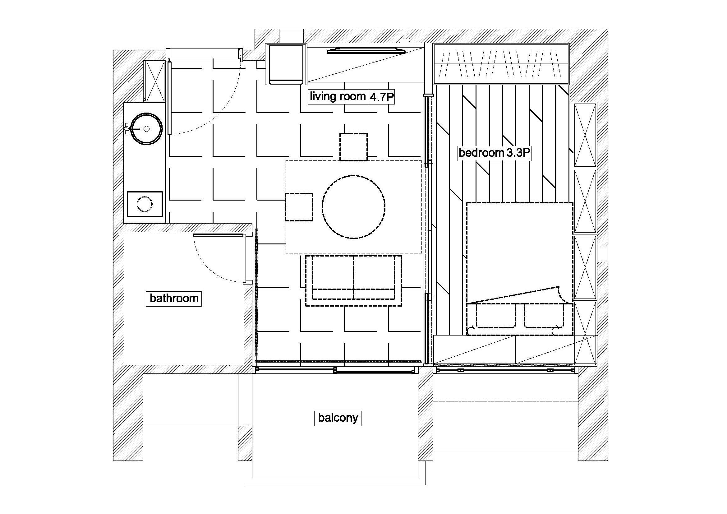
倍果_05 图片搜寻结果
倍果_05
26平米 ‧ 小户型 ‧ 现代风
<<
1
>>
每页16笔,共 10 笔资料
Loading