马上联络设计师,我有装修需求!

发讯息 拨电话

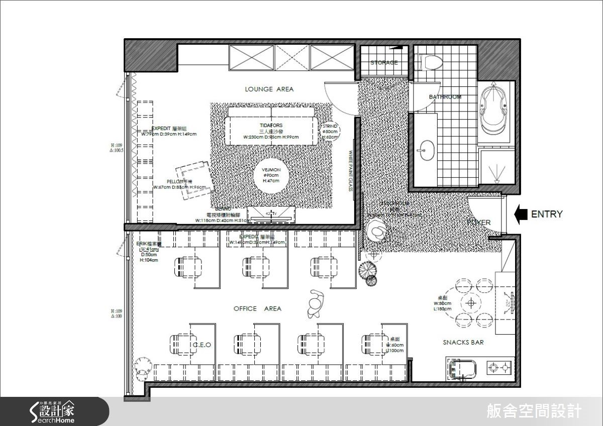
舨舍_06 图片搜寻结果

舨舍_06

79平米 ‧ 平层 ‧ 商业空间 ‧ 现代风

<< 1>> 每页16笔,共 7 笔资料
Loading