繁体版
TINTA金邸奖
Search
找文章
找设计师
找图片
找视频
close
热门关键词/
MyHome设计家
找设计师
找图片
找文章
找视频
登入 / 注册
会员登入
网友 / 设计师注册
如何在设计家刊登作品?
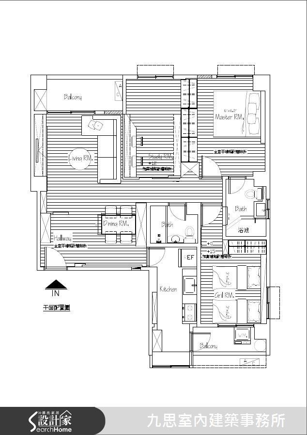
九思_07 图片搜寻结果
九思_07
116平米 ‧ 平层 ‧ 三居室 ‧ 北欧风
客厅
餐厅
厨房
卧室
书房
卫生间
走廊
<<
1
>>
每页16笔,共 15 笔资料
Loading