马上联络设计师,我有装修需求!

发讯息 拨电话

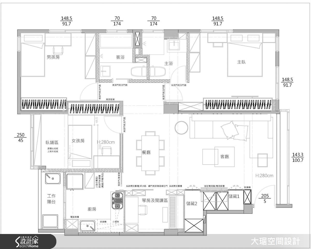
大琚_16 图片搜寻结果

大琚_16

99平米 ‧ 平层 ‧ 四居室 ‧ 美式风

<< 12>> 每页16笔,共 31 笔资料
Loading