繁体版
TINTA金邸奖
Search
找文章
找设计师
找图片
找视频
close
热门关键词/
MyHome设计家
找设计师
找图片
找文章
找视频
登入 / 注册
会员登入
网友 / 设计师注册
如何在设计家刊登作品?
陶玺_18 图片搜寻结果
陶玺_18
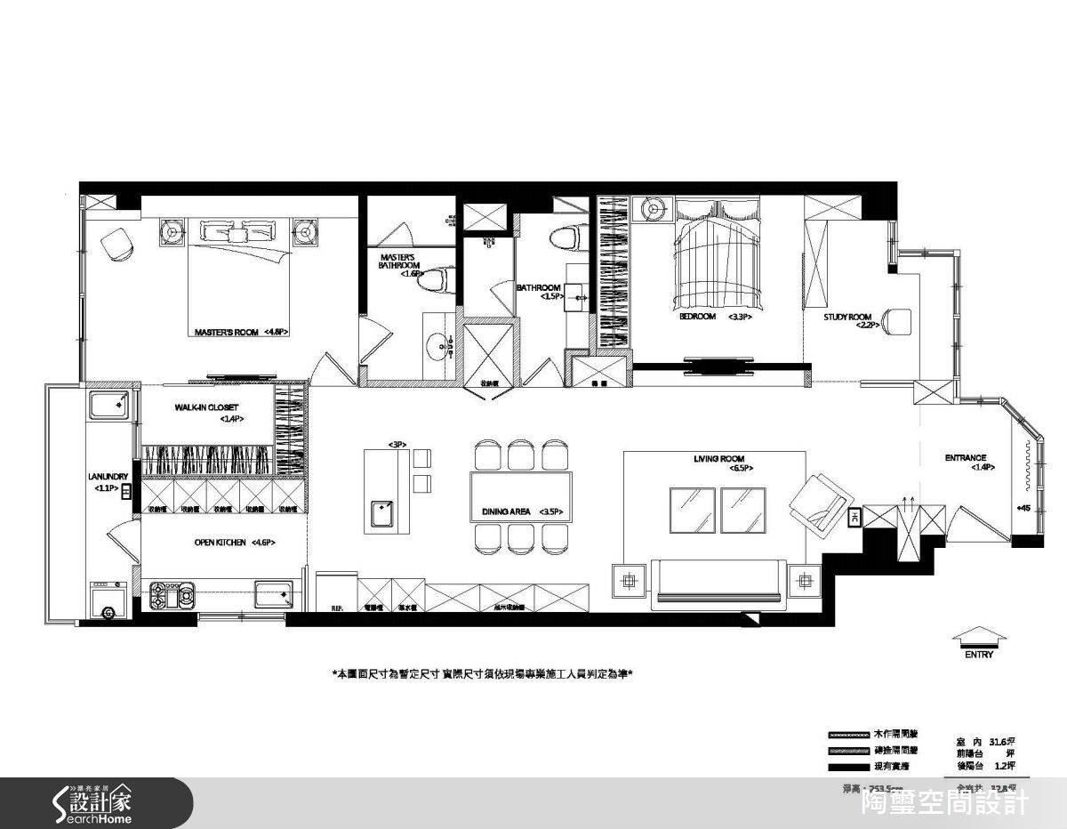
106平米 ‧ 平层 ‧ 二居室 ‧ 北欧风
玄关
客厅
餐厅
书房
<<
1
>>
每页16笔,共 16 笔资料
Loading