設計作品-趙玲室內設計有限公司-趙玲、呂學宇-設計家

50坪新成屋(5年以下)三房美式風
壁紙木作貼皮大理石噴漆玻璃

由趙玲室內設計精心規劃的50坪三房住宅空間,家庭成員一共有2位大人、2位小孩。因應屋主需求,設計師運用美式風作為主軸,搭配壁紙、木作貼皮、大理石、噴漆、玻璃,打造全家人的夢想家居。

45坪新成屋(5年以下)兩房美式風
木百葉噴漆鐵件系統板材木作貼皮

趙玲室內設計以進口木百葉、噴漆、鐵件、實木板、木皮、壁紙的搭配應用,呈現美式風居家氛圍,將此間45坪、兩房、單層、新成屋(5年以下)打造成舒適愜意的家庭空間,完成2位大人、1位小孩全家人的夢想之居。

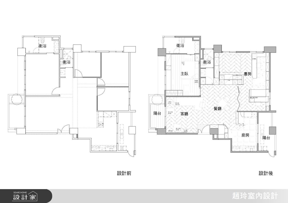
38.5坪新成屋(5年以下)四房美式風
系統板材鐵件文化石板牆漆跳色

簡單生活,不簡單!喧囂城市之中,謝謝設計師打造出屬於我們的完美小天地!38.5坪美式風設計,以放鬆又沉靜的光影與色彩選配,發揮了屋況優勢,備妥生活所需的收納機能,順暢動線安排,就這樣開啟了我們想要的新生活。 室內空間樑線較低,天花處便融合設計,以隱藏式燈帶及投射燈規劃,豐富空間氛圍,化缺陷為創意巧思;採光佳、風景優的公領域,透過風琴廉調節宜人室內光影,皮質亮黃沙發、土黃色文化石,藍色系貨櫃茶几、帶來柔和而鮮明的對比;人字拼鋪排吹起美式風休閒意味,不自覺擴張視線,視覺到觸覺皆溫和舒適;坐落於公領域中心的餐廳,以圓桌設定強化家的凝聚力,中島吧檯設計增添生活享受,層架收納則活絡轉角空間,變身公領域亮眼端景面! 小編的最愛 格局更動後,屏除隔間型構一間 L 型大書房,滿足屋主兩人閱讀嗜好,兼具引光入室、通風順暢優點!整面開放書牆提供大量典藏擺放位置,一旁隱私感十足的臥、躺兩用床鋪,能隨時轉換為客房,提供家人及親友使用!為讓空間更具流暢性,櫃體連接餐廚區收納賦予雙向開門、雙向應用之特色,兼具隔間機能,方便兩空間使用者收放,賦予滿分機能。

Loading