24坪老屋(16~30年)_混搭風案例圖片_舨舍空間設計有限公司_舨舍_02之12
聯絡設計師,我有裝潢需求!
0
登入 / 註冊
會員登入
網友 / 設計師註冊
如何在設計家刊登作品?
舨舍空間設計
首頁
作品
報導
影音
獎項經歷
關於設計師
聯絡詢價
☰
×
首頁
作品
報導
影音
獎項經歷
關於設計師
聯絡詢價
回設計家
ON
OFF
自動播放
每5秒自動播放下一張
12 of 12
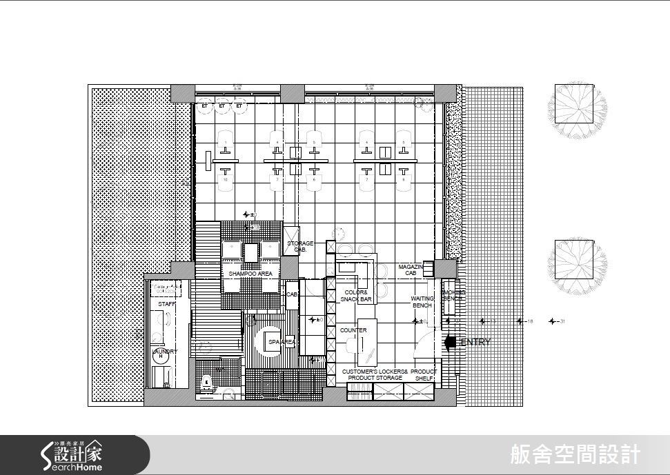
舨舍_02
24坪 ‧ 老屋(16~30年) ‧ 單層 ‧ 商業空間 ‧ 混搭風
0
相關案例報導
24 坪混搭風沙龍 揭開帷幕開啟空間魅力
2015-04-27
人氣
4,399
台北市隱身於綠意之後的一間 24 坪老屋,設計師替建物外觀注入簡單、俐落的線條,並圍塑金色古銅色調的格柵,打造出具時尚感的建物外
...more
相關案例推薦
Loading