26坪老屋(16~30年)_混搭風案例圖片_舨舍空間設計有限公司_舨舍_03之12
聯絡設計師,我有裝潢需求!
0
登入 / 註冊
會員登入
網友 / 設計師註冊
如何在設計家刊登作品?
舨舍空間設計
首頁
作品
報導
影音
獎項經歷
關於設計師
聯絡詢價
☰
×
首頁
作品
報導
影音
獎項經歷
關於設計師
聯絡詢價
回設計家
ON
OFF
自動播放
每5秒自動播放下一張
12 of 12
舨舍_03
26坪 ‧ 老屋(16~30年) ‧ 單層 ‧ 商業空間 ‧ 混搭風
0
相關案例報導
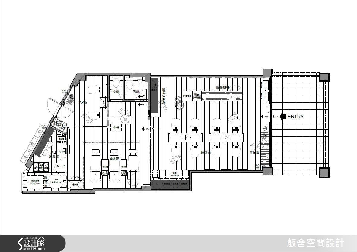
優雅時尚 簡約質感 充滿獨特風格的髮藝空間
2015-05-04
人氣
5,917
位於新北市的「MIMA」髮廊,空間以混搭風為基調,並透過量體的巧思布置,展演出空間的張力,同時採用內斂、穩重的深色搭配輕盈木質調
...more
相關案例推薦
Loading