30坪中古屋(5~15年)_現代風案例圖片_舨舍空間設計有限公司_舨舍_15之12
聯絡設計師,我有裝潢需求!
0
登入 / 註冊
會員登入
網友 / 設計師註冊
如何在設計家刊登作品?
舨舍空間設計
首頁
作品
報導
影音
獎項經歷
關於設計師
聯絡詢價
☰
×
首頁
作品
報導
影音
獎項經歷
關於設計師
聯絡詢價
回設計家
ON
OFF
自動播放
每5秒自動播放下一張
12 of 13
舨舍_15
30坪 ‧ 中古屋(5~15年) ‧ 夾層 ‧ 兩房 ‧ 現代風
0
相關案例報導
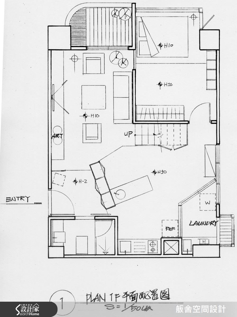
錯層設計再回歸,視線通透明亮機能也滿載
2015-05-20
人氣
8,946
早期盛行的錯層設計,試圖在有限的空間裡,採取向上延伸方式,多爭取空間也創造趣味的室內設計。本案位於新北市約 30 坪大,居住人口
...more
相關案例推薦
Loading