32坪新成屋(5年以下)_混搭風案例圖片_大琚空間設計_大琚_14之23
聯絡設計師,我有裝潢需求!
0
登入 / 註冊
會員登入
網友 / 設計師註冊
如何在設計家刊登作品?
大琚空間設計
首頁
作品
報導
影音
獎項經歷
關於設計師
聯絡詢價
☰
×
首頁
作品
報導
影音
獎項經歷
關於設計師
聯絡詢價
回設計家
ON
OFF
自動播放
每5秒自動播放下一張
23 of 23
大琚_14
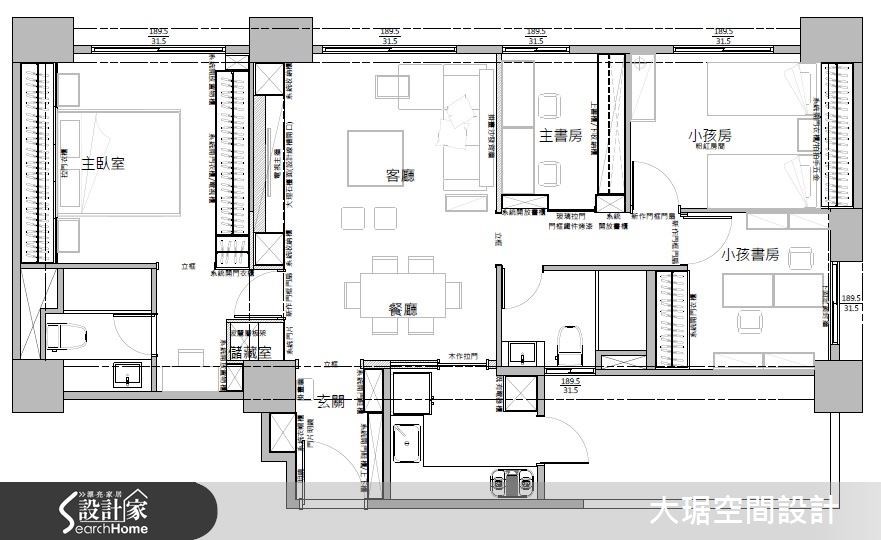
32坪 ‧ 新成屋(5年以下) ‧ 兩房 ‧ 混搭風
0
相關案例報導
收藏於藝,優雅交會
2017-06-07
人氣
6,041
生活水平的提升,讓居家生活有了更精彩的演繹。住,不再只是承載生活的容器,更是品味的淬煉,日積月累,我們得以將自身對美的期待、
...more
優雅新古典X 俐落現代風 交織低調奢華貴族生活
2015-05-26
人氣
14,259
新北市板橋區的 32 坪居家內,設計師在原先格局裡砌牆,隔出收納空間,滿足日常需求,並將新古典融合現代風,交織出大器氛圍中的細緻
...more
新古典×現代風--二道牆讓空間32變!
2015-05-25
人氣
52,833
當新古典的優雅遇上現代化的俐落,線條交織出大器空間裡的細緻感,即使營造出貴族式的奢華,也不會流於炫富的虛榮。對的建材起到加分
...more
相關案例推薦
Loading