新成屋(5年以下)_新古典案例圖片_大琚空間設計_大琚_21之19
聯絡設計師,我有裝潢需求!
0
登入 / 註冊
會員登入
網友 / 設計師註冊
如何在設計家刊登作品?
大琚空間設計
首頁
作品
報導
影音
獎項經歷
關於設計師
聯絡詢價
☰
×
首頁
作品
報導
影音
獎項經歷
關於設計師
聯絡詢價
回設計家
ON
OFF
自動播放
每5秒自動播放下一張
19 of 19
大琚_21
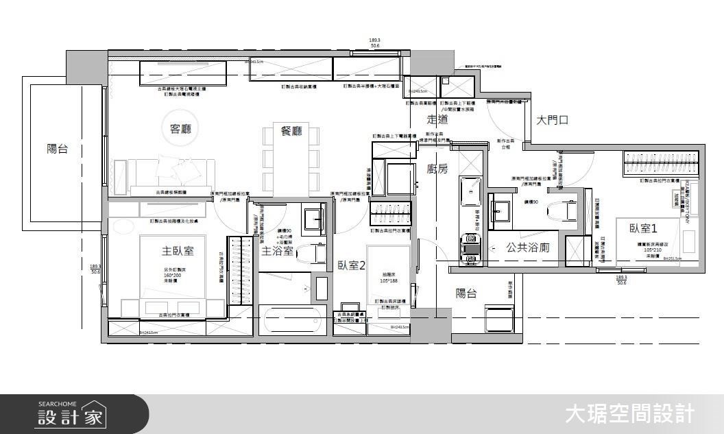
25.5坪 ‧ 新成屋(5年以下) ‧ 單層 ‧ 三房 ‧ 新古典
0
相關案例報導
掬滿優雅日光! 滿點機能乘載一家四口的甜蜜生活
2017-08-11
人氣
18,621
以大量的白色飾底,室內以新古典風格為創作靈感,藉由乾淨、簡約的線條描繪,融入現代風情後,一掃過分華麗的繁複細節,伴隨明亮日光
...more
相關案例推薦
Loading