水電工程-室內設計文章報導推薦-設計家 Searchome

提醒你

本網站隱私權政策已於2018年7月20日更新,請至閱覽並同意新版隱私權政策,若您未勾選同意而繼續使用本網站,則視為您已同意新版隱私權政策。

登入 / 註冊

會員登入

網友 / 設計師註冊

首頁 > 文章搜尋結果 > 水電工程

留住生活軌跡,重建空間秩序!源質設計幫你「老屋翻新」不搬家也能住進夢想家_視覺圖

留住生活軌跡,重建空間秩序!源質設計幫你「老屋翻新」不搬家也能住進夢想家

老屋不僅是日常生活的空間,更承載著關於生活、記憶與家的情感連結。近年來,越來越多屋主選擇留在這些帶有歲月痕跡的住所中,透過翻新,讓熟悉的地方再次閃耀光彩。相比購買新成屋,老屋翻新不只是單純的空間改造,更是對生活價值的延續與重塑。在結構安全無虞的前提下,屋主們願意投入時間與資金,追求的不僅是美觀與實用,而是一種「留在原地,卻能住進夢想之家」的生活理想。

【降低裝修預算】水電工程_視覺圖

【降低裝修預算】水電工程

關係全室各類網路管線的水電工程,隱藏在居家空間的每個角落。雖看似不起眼,卻是居家裝修中絕不能省的首要部分,尤其10年以上的中古屋或老屋,設計師更是建議,一定要將全室配管配線全部更新,以確保居家使用的安全性。

Q 「換線路」、「修水管」代表什麼都可以移嗎?!_視覺圖

Q 「換線路」、「修水管」代表什麼都可以移嗎?!

網友歆蕙問:購買中古屋後,我想作線路更換和修改水管,是不是代表我想將廚房和廁所移到哪個位置都可以呢?(例如:從房子的最左邊移到移到最右邊)駐站設計師-演拓設計‧張德良設計師的解答如下:水管因生活上需求而移位,修改要注意的重點在於「糞管」及「排水管」

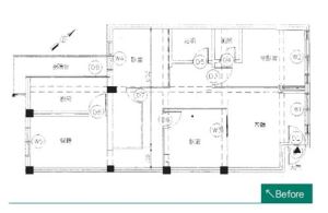
動線不足、空間不夠_視覺圖

動線不足、空間不夠

請救救我的新家,它是4樓公寓的2樓,屋齡20∼30年,樓高270cm,隔間大部分為輕隔間,動線不佳走廊太多,廚房餐廳位置會漏水到1樓,希望能改成以下:1.衛浴盡量不要太大更動,怕影響管線。2.餐廳位置想規劃一間臥室(全屋變成3房1廳)。3.主臥室太小了,希望有大衣櫃,梳妝台,木地板

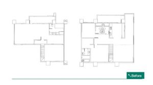
6米樓中樓格局變身術_視覺圖

6米樓中樓格局變身術

因為我想將客廳變大所以想把樓梯移向房間約1.5米,把樓下改為一個房間(與客用浴室切齊約1.5坪並減掉一浴廁),再將6.8米的樓中樓夾層做起來,把2樓變成2個房間並把樓下減掉之浴廁移至樓上,但移動樓梯會影響樓中樓上層的外牆也會切到房間內推門窗的一半,故想請問要如何設計樓梯才能不影響外觀又能變大客廳

Loading