提醒你
本網站隱私權政策已於2018年7月20日更新,請至閱覽並同意新版隱私權政策,若您未勾選同意而繼續使用本網站,則視為您已同意新版隱私權政策。

橡木偏紅色調,為了讓傢具調性不過突兀,搭配了紅色餐椅,做到色系上能相呼應。
垂直水平脈絡創造視覺兩樣情
近幾年美容界中常聽到「裸妝」一詞,即是透過大地色系的自然風,呈現出好像沒有化妝的效果,但同時又具有立體感。建築中也出現類似的「妝感」概念,建築結構以鋼筋混凝土搭配木造呈現,並減少多餘的修飾,不加以修飾的效果,勾勒出如同裸妝般的住宅建築。
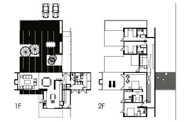
本案位在智利聖多明各的海灘度假勝地,屬兩層樓屋型,負責規劃的 UNarquitectura 設計團隊,刻意將上下兩層以不同材質結構來打造,上層是木結構,下層則以鋼筋混凝土為主,並分別以垂直與水平脈絡做鋪陳,相異的兩層樓看似獨立,但又能 match 在一起。材質處理也盡量減少過多修飾,像是結構混凝土、室內外地坪橡木甲板,盡量保留材質原色,用本身紋理加強視覺層次,也帶出該有的立體感。較特別的是,二樓外觀大膽地將松木塗刷上黑色漆料,引出沈穩調性之餘,黑色與灰色、咖啡色相互結合,又再度創造出建築好似懸浮在空中的錯覺。

建築中的垂直與水平線,看似相異,但隨視線從上而下走,竟創造出一致性的效果。

一棟建築上層是木結構,下層是鋼筋混凝土,利用線條語彙讓相異材質勾勒出一個家。

天花板、地面使用了木素材,壁面則以白牆做鋪陳,在溫潤空間創造另種視覺呼吸。

兩層樓建築,分別以垂直與水平脈絡做鋪陳,相異的兩層樓看似獨立,但又能 match 在一起。

相異空間使用不同地坪建材,圖騰紋理撞擊出對比感受,也明確地區分屬性。

建築以黑色漆料包覆住外觀,從遠處望向建築,創造出好似懸浮在空間的感覺。

Wood X Trend
木材質:室外以松木為主,紋理明顯、木節較多,染色後仍不失木素材特色;室內則是使用橡木,紋理呈直紋狀,恰好能與室外水平、垂直線條做呼應。
木色彩:松木用塗刷油漆處理,呈現出的平滑效果,與粗糙的混凝土相搭,呈現出細緻與粗獷的對比效果。木異材質:空間中木素材除了與混凝土相搭,另也與磁磚相結合,彼此圖騰大小不同,好似相互在比舞較勁。
木搭配:為讓傢具與木素材能相呼應,特別搭了紅色木餐椅,創造亮點、色彩也具變化。
資料來源:143期漂亮家居
DATA / UNarquitectura 設計師 Juan Pablo Nazar 網址:www.unarquitectura.cl 信箱 info@unarquitectura.cl