提醒你
本網站隱私權政策已於2018年7月20日更新,請至閱覽並同意新版隱私權政策,若您未勾選同意而繼續使用本網站,則視為您已同意新版隱私權政策。

屋頂以重疊方式呈現,堆疊縫細加入玻璃元素,一併將景觀、光線導引入室。
玻璃消弭了室內外的界定
居住的環境,能夠將自然景觀納入其中,一直是現代人生活的願景,隨著生活步調愈來愈緊湊,找尋一方靜謐生活也成為渴求。本案位於智利,為符合屋主一家四口的期待, COMUNarquitectos 以空間扣合景觀為概念,木屋中以玻璃作為中介因子,模糊了室內外兩者的界定,做到彼此能相容並存。
本案的設計發想受日本東京住宅影響頗深,規劃之初,設計師便省思如何能做到空間與自然關係是緊密結合的,於是從日本當地建築中,發現他們藉由玻璃元素,讓住宅看似獨立,但卻又能納景觀於住家中。因此運用木作與磚砌起了這棟木屋,建築緊貼地形而起,宛如原生於土地一般。屋頂以重疊方式呈現,適度在重疊之間以及建築物隔間牆部分,加入玻璃建材,其穿透特性,消弭室內外的界定,從室內遠望出去,將景致引入室,從室外往內注視,則是可以看見景觀映照於玻璃之上,兩者相融並存,拉近了彼此距離,也模糊了界線。

木房子緊貼地形而起,以自然的姿態和大地交流,宛如原生於土地一般。

木屋中以玻璃作為中介因子,模糊室內外兩者界定,做到彼此能相容並存。

空間使用了實木樑與柱子,以原始樣貌呈現,讓自然的生命感能在室內延續。

實木床架下的地坪,是混凝土結合大理石共同呈現,不同材質大幅增加搭配的趣味性。

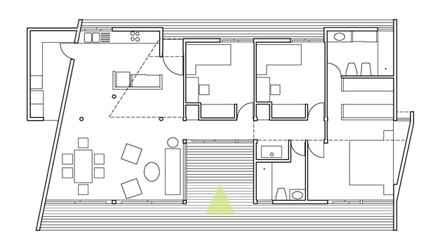
坪數:約44坪
格局:4房2廳 涼亭
建材: 混凝土、大理石、紅磚、松木、琺瑯塗料
Wood X Trend
木材質:松木是木構造建築的要角,因此在本案中被大量使用,由於品種不同,色澤也略有差異,此次使用的偏橘褐色,藉由其溫和色感與自然紋理,溫暖了空間。
木色彩:為讓自然景觀與空間關係更緊密,松木以原色呈現,用其本身溫潤的色澤,柔和了較為生硬的磚造結構。
木異材質:木空間裡的地坪,以混凝土為主,由於其色調與木質接近,讓相異材質多了點協調性;特別加入大理石,呈現對比效果,同時也製造出立體感。
資料來源:143期漂亮家居
COMUNarquitectos 設計師 Catalina González / Sebastián Yurjevic 網址 www.comunarquitectos.cl 信箱 catagcominetti@gmail.com syurjevic@gmail.com