提醒你
本網站隱私權政策已於2018年7月20日更新,請至閱覽並同意新版隱私權政策,若您未勾選同意而繼續使用本網站,則視為您已同意新版隱私權政策。

牆面突出的造型線條,除了讓空間更具生命力,也可用來擺放物品
住家(餐廚區)
坪數: 約7坪
格局: 1廳1廚
建材: 花崗岩、膠合板、磚

波浪線條帶動空間生命力
有一種空間美學是不過度添加風格元素,僅用最原始簡單的溫度調衡,然而,也有一種空間表現是用華麗作為包裝,用繁複線條創造搶眼感受。本案位在莫斯科,來自當地的 Geometrix Design 設計公司,選擇用華麗形塑空間,膠合板切割成波浪線條狀,並大膽加入 LED ,炫麗燈光加強整體前衛印象,而廚房也變得更具未來性。
設計靈感源自於異材質的突破與融合,於是在廚房天花板至壁面,以膠合板為主要裝飾材,並切割成不規則立體造型,宛如波浪一層層向外擴散,而牆面突出處,可以用來放置蒐藏品,兼具美觀與實用性。層層膠合板在組合時,留有縫細,於是在其中加入了 LED 條,用變幻出來的燈光色澤,有粉紅光也有綠光,成功替空間引出了未來感意象。除了壁面裝飾,紅酒杯吊架也是以膠合板製成,杯子吊掛在膠合板上,成為裝飾的一種,獨特的設計也能與空間相呼應。

磚牆上將鏡子切割成幾何形狀,再組合成貓頭鷹圖案,讓前衛空間多了點趣味性。

膠合板裝飾材從天花板延伸至壁面,再切割成不規則立體造型後,宛如波浪一層層向外擴散。

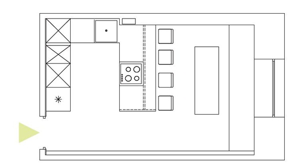
僅 7 坪大的廚房,還需塞入餐廳,因此選擇以開放式設計做規劃,使用起來不侷促,也能增加互動性。

座椅下方結合收納功能,特別將置物處挖了一格一格的方洞,提供屋主蒐藏紅酒之用。
Wood X Trend
木型式:為製造出造型,選用的木素材為膠合板,並以 5 層的厚度為主,粗細適中,表現層次感剛好。
木造型:利用切割技術,將膠合割成不規則的立體造型,看見板材的可塑性優點,同時也讓空間充滿了律動效果。
木異材質:膠合板除了搭配花崗岩與磚類建材,衝擊出軟硬質地的不同外,還特別結合了 LED 燈條,在燈光映照之下,讓木作也很具前衛感。
資料來源: 143期漂亮家居
Geometrix Design 設計師 Michael 和 Elen 網址www.geometrix.ru 信箱 art@geometrix.ru