提醒你
本網站隱私權政策已於2018年7月20日更新,請至閱覽並同意新版隱私權政策,若您未勾選同意而繼續使用本網站,則視為您已同意新版隱私權政策。

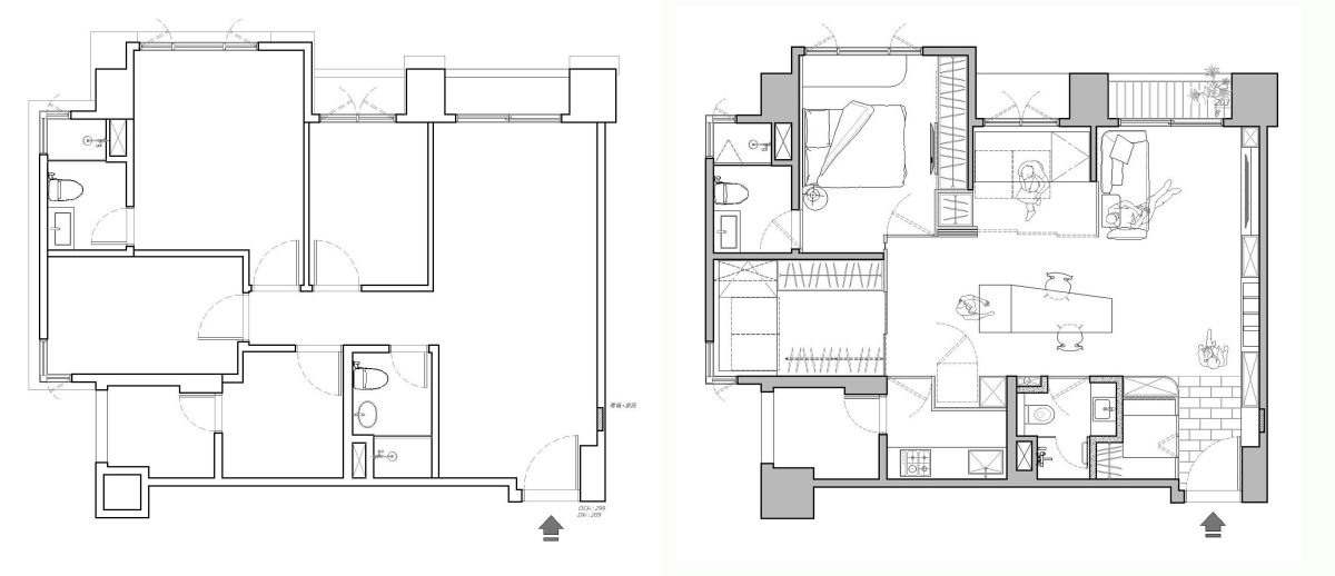
市售新成屋格局中,小三房和 2+1 房成為中小坪數住宅的主流,在坪數有限的狀況下,現代人對於收納、生活品質與空間感的要求不減反增,要如何將所需要的生活機能妥善安排在空間,同時又能維持居住體驗該有的寬敞感,更需符合現代人對於質感與風格的要求,禾光室內裝修設計在 20 坪大的新成屋裡,達成了屋主對於機能、品質與美學的要求,讓中小坪數住宅擁有豪宅氣度。

玄關區
玄關入口空間充足,設計師在進門左側規劃獨立衣帽間,隱藏門設計讓入門後的視覺乾淨整潔,一回家映入眼簾的景緻並非窄長過道,而是寬敞明亮的廳區。衣帽間內配置開放式鞋櫃,也能收納行李箱等大型居家用品,降低雜物分區囤放造成的凌亂感;右側設計不落地鞋櫃來擺放就常穿的鞋履,結合穿鞋椅設計對高齡屋主夫妻更友善。


客廳區
客廳與餐廳採取開放式設計,將客廳收納整合在電視牆面,由玄關一路延伸,對稱的雙開門片內皆配置活動層板,可以隨需求調整格櫃高度收納包包、瓷器等生活雜物。由於屋主夫妻的宗教信仰,設計師特別在牆面設計展示空間,擺放掛畫、經書等藏品,讓信仰成為生活的一部分。電視上方同樣也配置門片上櫃,運用不同色系劃區分收納機能,靠窗處的電視機櫃選擇灰玻材質,可修飾櫃內的機台同時在使用操作上也更為便利。


餐廚區
稍微壓縮廚房空間讓內廚能規劃隱藏門,形塑整潔的牆面視覺。由玄關轉角櫃延伸至餐廳牆面,拉齊水平線規劃收納展示櫃與酒櫃,補充收納又能弱化客浴的入口;將冰箱與廚房電器櫃外移至餐廳區,搭配增設的中島方便夫妻料理輕食,形塑更適合夫妻的使用動線。


2+1房
將靠近客廳房間的隔間牆改成雙向鐵件玻璃拉門,玻璃門可以完全隱藏於牆內,讓客廳空間更為彈性亦優化室內採光;房內配置單人大小的臥榻,牆面同樣以拉齊水平線的方式規劃衣櫃,客人來訪時可以作為臨時客房,也是屋主夫妻平時打坐放鬆的空間。


開放後的多功能房不僅讓 20 坪住宅擁有更舒適的空間感,也化解原本格局中房門出來後擁擠的動線,廊道空間也更為寬敞。主臥將收納隱藏於電視牆後方,單純化睡眠空間的視覺,也不讓凸出的櫃體影響動線,窗邊還有餘裕規劃臥榻休憩區。床頭後的主浴入口同樣也用隱藏門設計,在機能與空間感之間找到完美平衡。


因為夫妻作息不同,偶爾會需要分房睡來維持各自的生活品質,因此次臥配置單人加大床,保留原本配置的更衣間,只是將隔間用布簾升級臥房空間感;更衣間採用鐵件吊桿,讓女屋主可以陳列收藏的古董衣物。

進口美耐板
對於長期居住的生活空間來說,使用的材質除了美觀更要方便維護!室內的收納櫃皆選用進口美耐板打造,耐刮又不怕撞傷的特性不用刻意維護就能一直維持原本美觀的設計。帶霧面的色澤比起拋光亮面更有質感且不易沾附指紋,也不會有過多反射造成空間紊亂;挑選中性冷灰色調給人沉靜感,也能讓空間中的其他色彩更為和諧。

特殊塗料
牆面的油漆採用仿清水模色的特殊塗料,具備抗髒污、耐刷洗的特性,加上可以無色差的修補,不會像水泥粉光用久了會起沙或產生裂痕,特殊塗料在質感與機能上都是讓小宅能更有質感的幕後推手。

燈光
過多的燈具會影響空間感,因此設計師在天花板設計嵌燈全室打亮,重點區運用水晶吊燈與軌道燈營造氣氛,也能調整角度聚光在收藏形塑端景;衣櫃吊桿也加裝燈帶輔助照明,讓日常收納也擁有精品更衣間的細緻感。


