提醒你
本網站隱私權政策已於2018年7月20日更新,請至閱覽並同意新版隱私權政策,若您未勾選同意而繼續使用本網站,則視為您已同意新版隱私權政策。

老屋和中古屋因為價格比較實惠,公設比也較低,因此對於很多屋主來說,是非常值得投資的物件。但兩者因為房屋年齡較大之故,會有隔局較不符合購買者需求的狀況,管線也需要重新更換,除此之外在裝修上還有什麼需要注意的地方,一起跟著明代室內裝修來看看!
依需求重新規劃房間數,不做天花化解樓高低矮問題
相較於新成屋,因為生活模式隨著時代的改變, 中古屋和老屋可能較不符合購買者需求,因此設計師在著手規劃時,會先詳細理解居住者的需求、生活習性,在格局規劃時,放大使用者最常久待之處,依居住成員條件去調整所需,讓坪效能完全發揮、並且符合生活所需。
另外,遇到老屋採光不良的狀況,可用透光玻璃,在穿透性比較好的狀態下,讓光線得以流通;如老屋屋高不高,盡量不要做天花板,可以通過壁燈、立燈、桌燈等間接照明,滿足對光源的需求,化解樓高低矮的問題。
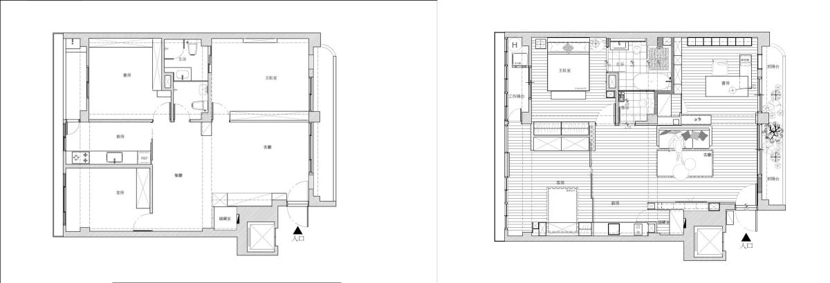
30 坪老屋居住者為1人、屋高不高,雖然建物本身的採光良好,但被眾多的房間數給掩蓋,導致整體空間動線不佳、採光不良,更不符合居住者的需求,同時還有漏水、壁癌和地磚爆裂等問題。

在格局規劃上,先取消鄰近客廳的房間,規劃為男主人最常久待的書房,而因為不常使用廚房之故,將原本廚房的位置釋放給主臥室與客房,不限定餐廳的位置,讓公共空間的有足夠的縱深。取消一房做為書房後,沙發的不置中擺放,讓人在使用書房時,也能觀賞電視。


取消一房後,客廳與書房的開窗串連,陽台的視野也跟著連貫;明代室內裝修設計非常重視室內與室外的連結,因此在採光面打開後,設計師在陽台種植多種常綠植物,自然而然將綠意引入室內。


原始客浴的格局因為沒有開窗之故,顯得較為陰暗,經過改造後,將主臥衛浴與客浴的隔間換上長虹玻璃,達到分享光線的目的。


居住者為一家四口,原始格局零亂,遮掩建物的良好採光,女主人喜歡下廚,但廚房封閉不好使用,也無法跟家人緊密互動,對於這個家庭而言,客廳區域反而為次要區域,因此在格局調動上,以放大餐廳區域、梳理動線為主要目的。

在格局調整上,釋放客廳後方的房間,並將廚房位移至此,規劃有中島小吧檯,可有效阻擋穿堂煞,加上客餐廳區域開放相鄰,鄰近陽台處則規劃為餐廳區域,讓公領域型成L順暢的型動線。釋放出的廚房空間,則做為主臥的更衣室使用,讓機能更完善。


餐廳緊鄰大露臺,經由設計師著手改造後,佈置綠意和流水,讓大面落地窗拉開後,可以感受舒適的涼風,更可以跟家人養的小烏龜互動,在自然繚繞的狀態下,讓人舒放壓力。


私領域集中於同一軸線上,讓每間房間都有採光,將動線梳理整齊後,化解狹長廊道的存在,更佳發揮坪效!
