提醒你
本網站隱私權政策已於2018年7月20日更新,請至閱覽並同意新版隱私權政策,若您未勾選同意而繼續使用本網站,則視為您已同意新版隱私權政策。

一名深耕於法律及教育的單身男屋主,居住於台北市華廈頂樓的 30 坪老屋內,由於空間是求學時期父母所購入的,伴隨著屋齡的年歲漸長,逐漸面臨水電管線老舊、漏水及壁癌等窘況急需修繕,而人生邁入後半場的屋主,也期待能透過本次的老屋翻新融入現階段的需求,且擁有閒適恣意的生活氛圍。
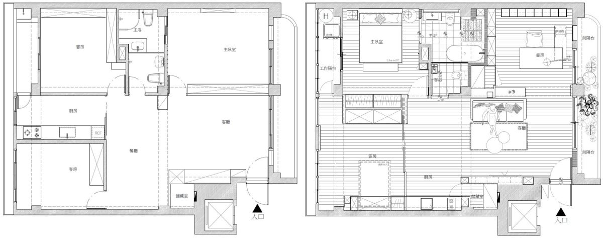
平時主要的居住成員僅有男屋主一人,但需預留父母親臨時小住的客房空間,明代室內設計將原先的 3 房 2 廳格局改為 2 房,希望為單身屋主爭取更加開闊的生活軌跡。

由於屋主少有烹飪需求,先是釋放廚房隔間並將機能簡化,多餘場域讓渡給私領域的兩間臥房,客房則以彈性拉門圍塑,當屋主獨自在家時敞開便能享有開闊的視覺饗宴,其次將原先的書房及主臥位置對調,讓窗外的綠意、景緻伴隨閱讀時光。

為了將單身宅的需求最大化,緊鄰的兩間衛浴改以穿透玻璃,引入充沛採光化解原先衛浴陰暗的問題,主臥衛浴更配置了四件式機能,沐浴時刻也能悠然地洗滌掉每日的辛勞。

本案名為「舞文閣」,空間的設計理念由屋主職業衍生而來,為了表彰身為法律系教授所需的公正、公平、正義三要素,書房後方設置大面書牆,以方正的線性造型,隱喻著居者自身嚮往及期許的主張,更成為空間的天然景深及視覺亮點。

身為一位熱愛閱讀、喜愛沈浸於書香世界的人,擁有眾多書籍卻無處放置,是屋主多年來的遺憾,在設計師的細心引導及溝通過後,屋主保留了部分書籍作為展示,其餘則改以隱藏式收納,讓所愛珍藏擁有一個絕佳的放置空間。


最後,明代室內設計將象徵正義女神的朱斯提提亞陶瓷浮雕像,擺放於書房立面的留白處,無形與空間進行著對話與呼應。

為了改善公區採光,將原先的半腰窗回復為落地窗型態,大面玻璃帷幕引入四季更迭,陽台處更放入了綠意植栽,原本對種植沒有太大興趣的屋主,更是在設計師的默默引導下,愛上了植栽綠意,自然、生命更是悄悄地走入他的下半餘生。


明代室內設計希望在每個空間內貫徹自然宅的理念,望居者的生活能回歸人文、陽光、自然及生活美學的基調,居宅色彩更以溫煦的大地色、木質調為主旋律,予屋主一個簡單質樸的生活態度與暖心的空間氛圍。
【桃園分公司】桃園市中壢區元化路275號10F